ラベルシュリンクトンネル

シュリンクトンネル

業務機器&資材 シロ産業 HOME
新製品情報 在庫処分情報 会社概要
見積依頼 ご注文フォーム お問い合わせ
業務用機材商社一筋で、創業41年。東大阪市商工会議所会員、2005年度IT百選企業。
国公立大学、研究所、自衛隊、警察庁 など主な国公立機関に納入実績多数。医療機器販売業免許取得済

包装資材 包装機械 物流機器 測定機器 洗剤 ケミカル 蛍光灯 季節品-夏 季節品-冬 弱電工具 ホイスト 環境機器 掃除機 ムーブテック 切削工具 機械工具調理厨房機器 研究室用品 安全防犯防災品 エクステリア 新商品 在庫処分


カテゴリー第二分類(包装機械)
包装機械カテゴリー一覧を見る

関連商品一覧

ラベルシュリンクトンネル/品番 M337R-1200K/M337R-1500K 【詳細表示】
商品番号 M337R-1200K/M337R-1500K 価 格
  ラベルシュリンクトンネル
品番 M337R-1200K
価格は下記をご覧下さい
キャップシール・ラベルシュリンクにはこの1台。
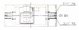
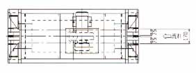
並行した2本のコンベアベルトの周速の差異により、複雑な機構を使用せず、容器本体を自転させることによって、均一かつ美麗な仕上がりを実現しました。(特許出願中)



■特長
●容器形状を選ばず丸型でも角型でも回転します。
●切り替えスイッチにより2本あるコンベアーベルトの1本を正転、逆転することができます。
●コンベアースピード調節は、インバーターにより簡単に可変できます。
●炉内側面に風量調整用スライドダンパー付。(前半部、後半部が独立して操作できます)さらにノズルによりキメ細かい調整が可能です。
●風量はインバーターにより可変できます。(CR-1500のみ)
●冷却回路の採用により、ヒーターカットと同時に炉内が冷却され自動的に運転が停止します。


■使用例
飲料、調味料、酒類、瓶詰、医薬品、日用雑貨、油脂類等


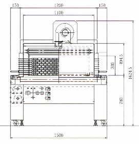
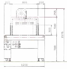
■仕様
機種 M337R-1200K M337R-1500K
コンベアー速度 0.12m/sec(60Hz時) 0.15m/sec(60Hz時)
トンネル内温度 室温~200℃ 室温~200℃
電気容量 3相 200V 6KW 18A 3相 200V 8KW 29A
コンベア・ブロワー 100W×2 140W 100W×2 270W
トンネル部有効寸法 140W×300H 170W×300H
梱包装物寸法 110W×250H(Max) 140W×300H(Max)
機械寸法 1200L×500W×1575H 1500L×620W×1630H
機械重量 190kg 300kg
寸法図

運賃、および消費税は、記載価格には、含まれていません。

[トップページに戻る] [注文書] [見積り依頼] TEL 0729-64-8663 FAX 0729-61-4874

営業時間 AM9:00~PM7:00 営業日 月曜日~金曜日 定休日 土曜日 日曜日 祝日