125kgピラー形ジブクレーン
ジブクレーン
業務用機材商社一筋で、創業41年。東大阪市商工会議所会員、2005年度IT百選企業。
国公立大学、研究所、自衛隊、警察庁 など主な国公立機関に納入実績多数。医療機器販売業免許取得済
■包装資材
■包装機械
■物流機器
■測定機器
■洗剤 ■ケミカル
■蛍光灯
■季節品-夏
■季節品-冬
■弱電工具
■ホイスト
■環境機器
■掃除機
■ムーブテック
■切削工具
■機械工具■調理厨房機器
■研究室用品
■安全防犯防災品
■エクステリア
■新商品
■在庫処分
ホイストカテゴリー一覧を見る
| 125kgピラー形ジブクレーン/品番 M75-PM13シリーズ |
【詳細表示】 |
| 商品番号 |
M75-PM13シリーズ |
価 格 |
 |
125kgピラー形ジブクレーン
250kgピラー形ジブクレーン |
125kgピラー形ジブクレーン
品番 M75-PM13シリーズ
価格は下記をご覧ください。 |
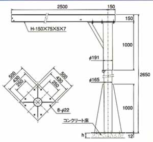
■寸法図
| M75-PM13 |
M75-PM25 |
 |
 |
| M75-PK13/M75-PK25 |
  |
| 品番 |
寸法 |
| S |
H |
a |
b |
c |
d |
e |
f |
g |
k |
l |
m |
n |
h |
| M75-PK13 |
1500 |
2800 |
885 |
615 |
100 |
115 |
2830 |
2630 |
2925 |
14 |
130 |
210 |
250 |
150以上 |
| M75-PK25 |
2000 |
2800 |
1175 |
825 |
135 |
165 |
2830 |
2575 |
2975 |
18 |
290 |
390 |
450 |
200以上 |
■仕様
| 品番 |
タイプ |
定格荷重 |
ビーム |
ビームサイズ |
最大回転角度 |
質量 |
| M75-PM13 |
ピラー形
ジブクレーン |
125kg |
C形 |
- |
360° |
約85kg |
| M75-PM25 |
250kg |
- |
(H)150×75×5 |
360° |
約180kg |
| M75-PK13 |
ピラー形
関節式ジブクレーン |
125kg |
角パイプ |
- |
290° |
約95kg |
| M75-PK25 |
250kg |
- |
280° |
約180kg |
|
運賃、および消費税は、記載価格には、含まれていません。
[トップページに戻る]
[注文書]
[見積り依頼] TEL 0729-64-8663 FAX 0729-61-4874
営業時間 AM9:00~PM7:00 営業日 月曜日~金曜日 定休日 土曜日 日曜日 祝日