真空包装機(シール長240mm)

チャンバー式真空包装機

業務機器&資材 シロ産業 HOME
新製品情報 在庫処分情報 会社概要
見積依頼 ご注文フォーム お問い合わせ
業務用機材商社一筋で、創業41年。東大阪市商工会議所会員、2005年度IT百選企業。
国公立大学、研究所、自衛隊、警察庁 など主な国公立機関に納入実績多数。医療機器販売業免許取得済

包装資材 包装機械 物流機器 測定機器 洗剤 ケミカル 蛍光灯 季節品-夏 季節品-冬 弱電工具 ホイスト 環境機器 掃除機 ムーブテック 切削工具 機械工具調理厨房機器 研究室用品 安全防犯防災品 エクステリア 新商品 在庫処分


カテゴリー第二分類(包装機械)
包装機械カテゴリー一覧を見る

関連商品一覧

真空包装機(シール長240mm)/品番 M2885PS-200BH 【詳細表示】
商品番号 M2885PS-200BH 価 格
真空包装機(シール長240mm)/M2885PS-200BH 真空包装機(シール長240mm)
品番 M2885PS-200BH
価格は下記をご覧ください
食材保存もおいしさアップも真空パックにおまかせ。
設置スペースに配慮したコンパクトなボディ。奥行600mmの作業台などの上に設置できます。
冷たいものを真空でパックする従来の機能に加え、調理してすぐの高温の食品もパックできるホットパック機能をプラス。1台で2つの用途に使い分けることができます。




■液晶カラー画面で見やすく
液晶カラー画面で直感的に操作でき、より簡単に設定できるようになりました。
※写真はすべての表示を点灯させた状態です。


■操作方法や機能説明も液晶で確認できるので初めて使う人も安心です。


■プログラム登録は12通りまで可能。アイコン表示で判別しやすくなりました。



■4ステップでだれでもカンタン真空包装




■食材の量や大きさ、種類に合わせて、付属のスペーサーで深さを調整
スペンサーを付けた場合 スペンサーを付けない場合


■メンテナンス性毎日使うからメンテナンスにも配慮
オイル交換時期のお知らせなど、お手入れ方法をわかりやすく液晶パネルで表示します。また最短約6分で完了する水抜きも、簡単に液晶パネルから操作できます。

■オイル交換のタイミングをお知らせ
オイル交換時期を液晶パネルに表示してお知らせします。

■オイルの状態を目視でも確認が可能
本体側面のオイル点検窓で、目視でもチェックできます。

真空ポンプを効率よく運転させるにはオイルが必要です。
量が不足したり、汚れたりしているとポンプの故障や真空度合いが不十分になる恐れがあるため、定期的にオイル交換が必要になります。
お客様ご自身でオイル交換が可能なオイルセルフ交換仕様(受注生産)もあります。



■業界最速!※最短約6分で水抜き完了
定期的に水抜き運転をすることで、ポンプオイルの劣化を防ぐことができます。
ホシザキの真空包装機はボタンひとつで水抜きを開始。
しかも業界最速の最短約6分で完了します。

※ 2020年10月現在、国内業務用真空包装機において(メーカー調べ)


■掃除がしやすいチャンバー底面絞り構造
チャンバー内の底面は絞り構造のため、掃除がしやすい構造となっています。
また、吹きこぼれた場合でも凹形状のため、機械の外にまでこぼれることがありません。
●万が一、吹きこぼれた場合



■特殊パック食材に合わせた特殊パックにも対応
やわらかい食材はソフトに包装を調節したり、液体は吹きこぼさないよう制御したり、食材の形状に合わせて真空包装できます。

■やわらかいものや液体まで食材に合わせた特殊パック
●ソフト開放
庫内を真空状態にした後、気圧をゆっくり戻すことで、やわらかいものや形の崩れやすいものもやさしく真空包装できます。


●真空反復機能
カレーやシチューなどの液体の真空包装時、真空引きをくり返すことでチャンバー内での吹きこぼれを軽減します。


●「含浸モード」 搭載
凍結含浸法は食材の見た目や風味をそのままに、舌でつぶせるほどのやわらかさにできる調理方法です。
喫食者が食べる喜びを感じることができ、病院や福祉施設から注目されています。


●凍結含浸法の流れ
※凍結含浸法は、広島県立総合技術研究所食品工業技術センターが発明した特許技術です。


■ホットパック仕様
●おいしさキープで小分け保存
高温の状態でもパックが可能な機能を搭載。
できたてのスープやカレーもそのままパックできるので、味のバラつきがなく小分け保存ができ、調理作業の効率化にも役立ちます。

●真空包装とホットパックの1台2役
冷たいものを真空でパックする従来の機能に加え、調理してすぐの高温の食品もパックできるホットパック機能をプラス。
1台で2つの用途に使い分けることができます。

ボタンひとつで脱気からシールまで自動で完了
業界初※自動脱気判定機能を搭載
袋のふくらみを自動で検知し、くり返し脱気運転することにより確実に空気を抜くことができます。
袋の中の空気が少ない場合は脱気運転のくり返し回数が減り、短時間で終了します。

※ 2015年1月現在(メーカー調べ)
※ ホットパックは、真空度と沸点の関係により「脱気」程度の真空度となります。




■加熱直後にパックして小分けすることでメリットいっぱい




■タイプ
M2885PS-200BH/M2885PS-200BH-GF M2885PS-200BH-OS
M2885PS-HP200BH/M2885PS-HP200BH-GF M2885PS-HP200BH-OS



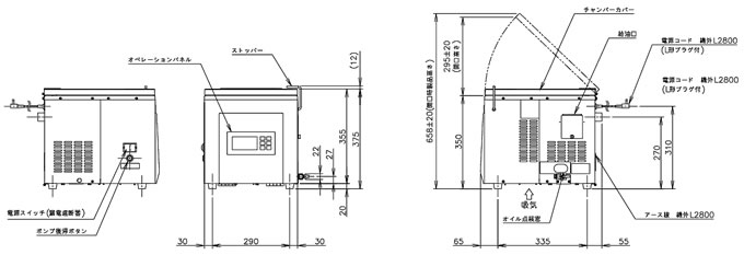
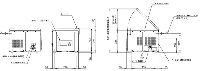
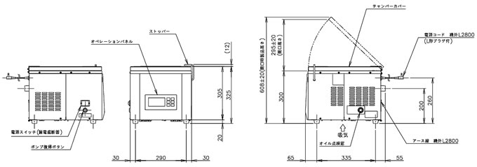
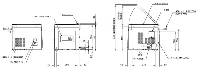
■寸法図
M2885PS-200BH/M2885PS-200BH-GF
M2885PS-200BH-OS
M2885PS-HP200BH/M2885PS-HP200BH-GF
M2885PS-HP200BH-OS


■設置しやすいコンパクトサイズ
設置スペースに配慮したコンパクトなボディ
奥行600mmの作業台などの上に設置できます。



■共通仕様
電源 単相100V 50/60Hz 1.06kVA (10.6A)
消費電力 790/900W
外形寸法 幅 350×奥行 455×高さ 325+12mm
シール長さ 240mm
最大袋寸法 幅 230×長さ 320mm
製品質量 34kg

■仕様
品番 機能 製品質量
ガス充填仕様 オイルセルフ交換仕様 ホットパックタイプ
M2885PS-200BH - - - 34kg
M2885PS-200BH-GF - -
M2885PS-200BH-OS - -
M2885PS-200BH-GO -
M2885PS-HP200BH - - 35kg
M2885PS-HP200BH-GF -
M2885PS-HP200BH-OS -
M2885PS-HP200BH-GO



運賃、および消費税は、記載価格には、含まれていません。

[トップページに戻る] [注文書] [見積り依頼] TEL 0729-64-8663 FAX 0729-61-4874

営業時間 AM9:00~PM7:00 営業日 月曜日~金曜日 定休日 土曜日 日曜日 祝日