電動トロリー付電動チェーンブロック2速型(上下巻上2速横行2速インバーター式)
ホイスト
業務用機材商社一筋で、創業41年。東大阪市商工会議所会員、2005年度IT百選企業。
国公立大学、研究所、自衛隊、警察庁 など主な国公立機関に納入実績多数。医療機器販売業免許取得済
■包装資材 ■包装機械 ■物流機器 ■測定機器 ■洗剤 ■ケミカル ■蛍光灯 ■季節品-夏 ■季節品-冬 ■弱電工具 ■ホイスト ■環境機器 ■掃除機 ■ムーブテック ■切削工具 ■機械工具■調理厨房機器 ■研究室用品 ■安全防犯防災品 ■エクステリア ■新商品 ■在庫処分
ホイストカテゴリー一覧を見る
| 電動トロリー付電動チェーンブロック2速型(上下巻上2速横行2速インバーター式)/ 品番 M75R2-M001IH-IS-4M |
【詳細表示】 |
| 商品番号 |
M75R2-M001IH-IS-4M |
価 格 |
 |
電動トロリー付電動チェーンブロック2速型(上下巻上2速横行2速インバーター式)
品番 M75R2-M001IH-IS-4M
価格は下記をご覧ください。 |
電気トロリ結合式
巻上下・横行2速インバータ形

■特長 ●給電ケーブルはついておりません。給電方式に応じご相談ください。
●揚程(ロードチェーン)・押ボタンコードの長さは、それぞれ標準仕様以外の長さもご相談に応じます。
●ロードチェーンは焼入れチェーンのため継ぎたしができませんのでご注意ください。
●操作方法はテルハ用5点(上下・横行)ボタン式、クレーン用7点(上下・横行・走行)ボタン式があります。
●操作回路は24Vの低電圧となっておりますので、クレーン用7点ボタン式の場合は別途クレーン用制御箱をお求めください。
●押ボタンスイッチには、非常停止ボタンが標準装備されています。非常停止ボタンを押すことにより、モータの回路を手元で遮断することができます。
●同一レールに複数台使用で互いに衝突の可能性がある場合は、緩衝用バンパーが必要となります。
●2台つり作業の場合は、定格荷重に余裕をもった巻上機を選定する必要がありますので事前にメーカーへご相談ください。
●巻上速度は定格荷重を巻き上げるときの速度です。荷重により変動する場合があります。
●標準揚程以外では、5~20mまで1m単位でお受けいたします。(2.8~5tは10mまで、7.5~20tは6.0mまで)上記以外の場合は、別途お問い合わせください。
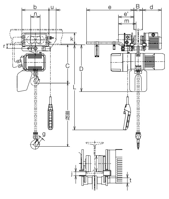
■寸法(mm)

| 品番 |
レール下面から
下フックまでの
距離:C |
D |
b |
d |
e |
e' |
g |
i |
j |
k |
m |
n |
r |
t |
u |
| M75R2-M001IH-IS |
375 |
450 |
315 |
220 |
515 |
179 |
27 |
95 |
22 |
130 |
205 |
109 |
51 |
31 |
83 |
| M75R2-M003IS-IS |
| M75R2-M003IH-IS |
395 |
510 |
| M75R2-M004IL-IS |
| M75R2-M004IS-IS |
| M75R2-M005IS-IS |
| M75R2-M010IL-IS |
435 |
550 |
31 |
| M75R2-M010IS-IS |
| M75R2-M015IS-IS |
505 |
630 |
325 |
225 |
520 |
184 |
34 |
110 |
27 |
125 |
212 |
118 |
60 |
36 |
76 |
| M75R2-M020IL-IS |
570 |
39 |
| M75R2-M020IS-IS |
585 |
| M75R2-M025IS-IS |
620 |
830 |
340 |
226 |
521 |
186 |
125 |
29 |
131 |
215 |
132 |
68 |
43 |
70 |
| M75R2-M028IS-IS |
765 |
900 |
44 |
| M75R2-M030IS-IS |
815 |
| M75R2-M048IS-IS |
900 |
910 |
400 |
281 |
528 |
192 |
47 |
140 |
44 |
145 |
233 |
150 |
86 |
54 |
56 |
| M75R2-M050IS-IS |
●D寸法は、揚程4mの場合です。
●巻上機の寸法は懸垂形[単体]をご覧ください。
■仕様
| 品番 |
定格
荷重
(t) |
基
本
本
体 |
標
準
揚
程
(m) |
巻上モータ3相200V |
横行モータ3相200V |
出力
(KW) |
電流値
(A) |
反復
定格
(%ED) |
出力
(KW) |
電流値
(A) |
反復
定格
(%ED) |
| INV |
INV |
| M75R2-M001IH-IS-4M |
125kg |
B |
4 |
0.56 |
4.0 |
40/20 |
0.4 |
3.0 |
27/13 |
| M75R2-M001IH-IS-6M |
6 |
| M75R2-M003IS-IS-4M |
250kg |
4 |
| M75R2-M003IS-IS-6M |
6 |
| M75R2-M003IH-IS-4M |
C |
4 |
0.9 |
5.7 |
| M75R2-M003IH-IS-6M |
6 |
| M75R2-M004IL-IS-4M |
490kg |
4 |
0.56 |
4.0 |
| M75R2-M004IL-IS-6M |
6 |
| M75R2-M004IS-IS-4M |
4 |
0.9 |
5.7 |
| M75R2-M004IS-IS-6M |
6 |
| M75R2-M005IS-IS-4M |
500kg |
4 |
| M75R2-M005IS-IS-6M |
6 |
| M75R2-M010IL-IS-4M |
1 |
D |
4 |
| M75R2-M010IL-IS-6M |
6 |
| M75R2-M010IS-IS-4M |
4 |
1.8 |
11.2 |
| M75R2-M010IS-IS-6M |
6 |
| M75R2-M015IS-IS-4M |
1.5 |
E |
4 |
| M75R2-M015IS-IS-6M |
6 |
| M75R2-M020IL-IS-4M |
2 |
4 |
| M75R2-M020IL-IS-6M |
6 |
| M75R2-M020IS-IS-4M |
4 |
3.5 |
18.7 |
| M75R2-M020IS-IS-6M |
6 |
| M75R2-M025IS-IS-4M |
2.5 |
F |
4 |
| M75R2-M025IS-IS-6M |
6 |
| M75R2-M028IS-IS-4M |
2.8 |
E |
4 |
| M75R2-M028IS-IS-6M |
6 |
| M75R2-M030IS-IS-4M |
3 |
4 |
| M75R2-M030IS-IS-6M |
6 |
| M75R2-M048IS-IS-4M |
4.8 |
F |
4 |
0.75 |
4.8 |
| M75R2-M048IS-IS-6M |
6 |
| M75R2-M050IS-IS-4M |
5 |
4 |
| M75R2-M050IS-IS-6M |
6 |
| 品番 |
巻上速度
(m/s [m/min]) |
横行速度
(m/s [m/min]) |
| |
50Hz/60Hz |
50Hz/60Hz |
| 高速 |
低速 |
高速 |
低速 |
| M75R2-M001IH-IS-4M |
標準 |
0.277 [16.6] |
0.0461 [2.8] |
標準・
設定範囲
0.400
[24] |
標準
0.0667
[4]
設定範囲
0.0400
[2.4] |
| M75R2-M001IH-IS-6M |
設定範囲 |
0.0231 [1.4] |
| M75R2-M003IS-IS-4M |
標準 |
0.179 [10.8] |
0.0299 [1.8] |
| M75R2-M003IS-IS-6M |
設定範囲 |
0.0150 [0.9] |
| M75R2-M003IH-IS-4M |
標準 |
0.261 [15.7] |
0.0435 [2.6] |
| M75R2-M003IH-IS-6M |
設定範囲 |
0.0218 [1.3] |
| M75R2-M004IL-IS-4M |
標準 |
0.0750 [4.5] |
0.0125 [0.8] |
| M75R2-M004IL-IS-6M |
設定範囲 |
0.0063 [0.4] |
| M75R2-M004IS-IS-4M |
標準 |
0.142 [8.5] |
0.0237 [1.4] |
| M75R2-M004IS-IS-6M |
設定範囲 |
0.0118 [0.7] |
| M75R2-M005IS-IS-4M |
標準 |
0.0237 [1.4] |
| M75R2-M005IS-IS-6M |
設定範囲 |
0.0118 [0.7] |
| M75R2-M010IL-IS-4M |
標準 |
0.0693 [4.2] |
0.0115 [0.7] |
| M75R2-M010IL-IS-6M |
設定範囲 |
0.0058 [0.3] |
| M75R2-M010IS-IS-4M |
標準 |
0.137 [8.2] |
0.0228 [1.4] |
| M75R2-M010IS-IS-6M |
設定範囲 |
0.0114 [0.7] |
| M75R2-M015IS-IS-4M |
標準 |
0.0877 [5.3] |
0.0146 [0.9] |
| M75R2-M015IS-IS-6M |
設定範囲 |
0.0073 [0.4] |
| M75R2-M020IL-IS-4M |
標準 |
0.0714 [4.3] |
0.0119 [0.7] |
| M75R2-M020IL-IS-6M |
設定範囲 |
0.0060 [0.4] |
| M75R2-M020IS-IS-4M |
標準 |
0.136 [8.2] |
0.0226 [1.4] |
| M75R2-M020IS-IS-6M |
設定範囲 |
0.0113 [0.7] |
| M75R2-M025IS-IS-4M |
標準 |
0.111 [6.6] |
0.0184 [1.1] |
| M75R2-M025IS-IS-6M |
設定範囲 |
0.0092 [0.6] |
| M75R2-M028IS-IS-4M |
標準 |
0.0878 [5.3] |
0.0146 [0.9] |
| M75R2-M028IS-IS-6M |
設定範囲 |
0.0073 [0.4] |
| M75R2-M030IS-IS-4M |
標準 |
0.0861 [5.2] |
0.0143 [0.9] |
| M75R2-M030IS-IS-6M |
設定範囲 |
0.0072 [0.4] |
| M75R2-M048IS-IS-4M |
標準 |
0.0564 [3.4] |
0.0094 [0.6] |
| M75R2-M048IS-IS-6M |
設定範囲 |
0.0047 [0.3] |
| M75R2-M050IS-IS-4M |
標準 |
0.0553 [3.3] |
0.0092 [0.6] |
| M75R2-M050IS-IS-6M |
設定範囲 |
0.0046 [0.3] |
| 品番 |
適用
レール巾
:B(mm) |
最小
回転
半径
(mm) |
ロードチェーン
線径×掛数
(mm) |
等
級 |
試験
荷重
(t) |
質量
(kg) |
揚程
1m増し
増加質量
(kg) |
フック
ブロック
質量
(kg) |
| M75R2-M001IH-IS-4M |
[75]
・
100
・
125
・
150 |
800
[3500] |
φ4.3×1 |
M6 |
156kg |
59 |
0.42 |
1 |
| M75R2-M001IH-IS-6M |
| M75R2-M003IS-IS-4M |
313kg |
| M75R2-M003IS-IS-6M |
| M75R2-M003IH-IS-4M |
φ6.0×1 |
59 |
0.81 |
| M75R2-M003IH-IS-6M |
| M75R2-M004IL-IS-4M |
613kg |
65 |
| M75R2-M004IL-IS-6M |
| M75R2-M004IS-IS-4M |
69 |
| M75R2-M004IS-IS-6M |
| M75R2-M005IS-IS-4M |
625kg |
| M75R2-M005IS-IS-6M |
| M75R2-M010IL-IS-4M |
φ7.7×1 |
M5 |
1.25 |
78 |
1.33 |
2 |
| M75R2-M010IL-IS-6M |
| M75R2-M010IS-IS-4M |
85 |
| M75R2-M010IS-IS-6M |
| M75R2-M015IS-IS-4M |
[100]
・
125
・
150
・
175 |
800
[1000] |
φ10.2×1 |
1.88 |
113 |
2.3 |
4 |
| M75R2-M015IS-IS-6M |
| M75R2-M020IL-IS-4M |
M4 |
2.5 |
114 |
| M75R2-M020IL-IS-6M |
| M75R2-M020IS-IS-4M |
131 |
| M75R2-M020IS-IS-6M |
| M75R2-M025IS-IS-4M |
125
・
150
・
175 |
1000 |
φ11.2×1 |
3.13 |
153 |
2.8 |
| M75R2-M025IS-IS-6M |
| M75R2-M028IS-IS-4M |
φ10.2×2 |
3.5 |
159 |
4.7 |
8 |
| M75R2-M028IS-IS-6M |
| M75R2-M030IS-IS-4M |
3.75 |
| M75R2-M030IS-IS-6M |
| M75R2-M048IS-IS-4M |
1800 |
φ11.2×2 |
6 |
205 |
5.6 |
14 |
| M75R2-M048IS-IS-6M |
| M75R2-M050IS-IS-4M |
6.25 |
| M75R2-M050IS-IS-6M |
●質量は、揚程4mの場合です。
●適用レール巾[ ]内数値の場合は、最小回転半径が[ ]の数値となりますのでご注意ください。
●M6等級の対象製品は、125kg~500kgの標準仕様(フリクションクラッチ仕様)となります。
|
運賃、および消費税は、記載価格には、含まれていません。
[トップページに戻る] [注文書] [見積り依頼] TEL 0729-64-8663 FAX 0729-61-4874
営業時間 AM9:00~PM7:00 営業日 月曜日~金曜日 定休日 土曜日 日曜日 祝日