伸縮簡易門型クレーン

門型クレーン

業務機器&資材 シロ産業 HOME
新製品情報 在庫処分情報 会社概要
見積依頼 ご注文フォーム お問い合わせ
業務用機材商社一筋で、創業41年。東大阪市商工会議所会員、2005年度IT百選企業。
国公立大学、研究所、自衛隊、警察庁 など主な国公立機関に納入実績多数。医療機器販売業免許取得済

包装資材 包装機械 物流機器 測定機器 洗剤 ケミカル 蛍光灯 季節品-夏 季節品-冬 弱電工具 ホイスト 環境機器 掃除機 ムーブテック 切削工具 機械工具調理厨房機器 研究室用品 安全防犯防災品 エクステリア 新商品 在庫処分


カテゴリー第二分類(ホイスト)
ホイストカテゴリー一覧を見る

関連商品一覧

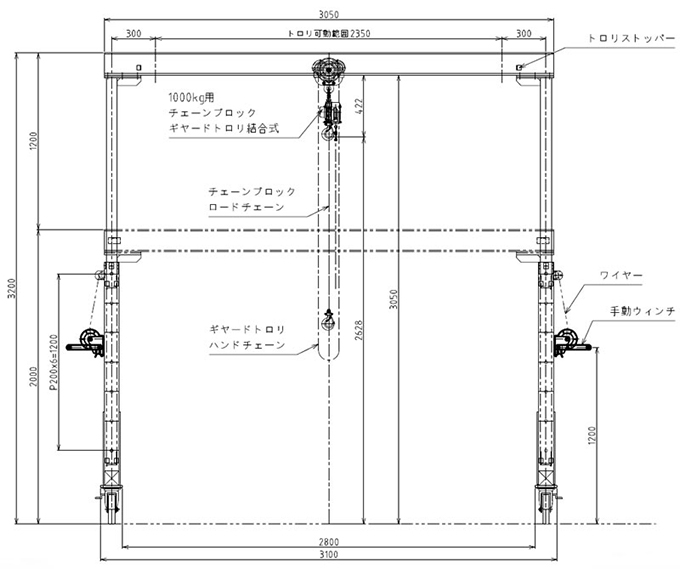
伸縮簡易門型クレーン/品番 MC2S-1000KG 【詳細表示】
商品番号 MC2S-1000KG コメント
伸縮簡易門型クレーン/MC2S-1000KG ・手動式チェーンブロック及び手動式ギヤトロリー付きです。

・納入時はトラック上渡しです。荷降ろし及び搬入は含みません。
※一体完成品にて納入致します
伸縮簡易門型クレーン
品番 MC2S-1000KG
■仕様
品番 MC2S-1000KG
外形寸法 下図のとおり
最大荷重 1000kg
揚程 2.5m
塗装 ウレタン系樹脂塗装、塗装色:黄色系


■寸法図


運賃、および消費税は、記載価格には、含まれていません。

[トップページに戻る] [注文書] [見積り依頼] TEL 0729-64-8663 FAX 0729-61-4874

営業時間 AM9:00~PM7:00 営業日 月曜日~金曜日 定休日 土曜日 日曜日 祝日