乾式靴底クリーナー

調理厨房機器

業務機器&資材 シロ産業 HOME
新製品情報 在庫処分情報 会社概要
見積依頼 ご注文フォーム お問い合わせ
業務用機材商社一筋で、創業41年。東大阪市商工会議所会員、2005年度IT百選企業。
国公立大学、研究所、自衛隊、警察庁 など主な国公立機関に納入実績多数。医療機器販売業免許取得済

包装資材 包装機械 物流機器 測定機器 洗剤 ケミカル 蛍光灯 季節品-夏 季節品-冬 弱電工具 ホイスト 環境機器 掃除機 ムーブテック 切削工具 機械工具調理厨房機器 研究室用品 安全防犯防災品 エクステリア 新商品 在庫処分


カテゴリー第二分類(調理厨房機器)
調理厨房機器カテゴリー一覧を見る

関連商品一覧

乾式靴底クリーナー 品番 M1481S-V12P 【詳細表示】
商品番号 M1481S-V12P 価 格
乾式靴底クリーナー/M1481S-V12P 乾式靴底クリーナー
品番 M1481S-V12P
靴底の溝にこびり付いた汚れを強力に除去!
靴底の汚れが気になる方へ
靴底の溝に入った汚れもよく落ちる!!


乾式靴底クリーナー/M1481S-V12P


■特徴
縦型特殊回転ブラシが、靴底や靴底の溝にこびり付いた汚れを効率よく落とします。
たまった汚れはダストトレーに回収されます。
又、付属の掃除用ブラシにて回転ブラシに付着した汚れを取り除けます。


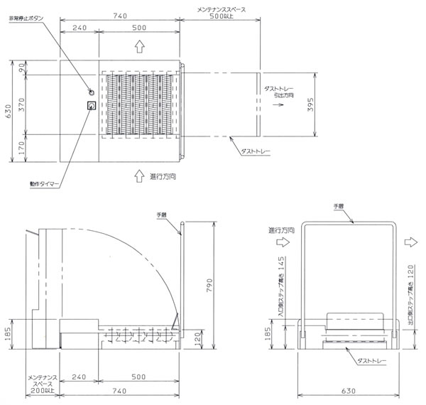
■外形図


■仕様
品番 M1481S-V12P
概算重量 50kg
材質 主要部:SUS304
電源 AC100V 単相0.2kW
制御 センサー起動方式
ブラシ面に乗ると起動します。
ブラシ運転時間は約10秒に設定されています。
※タイマー設定(0~60秒・可変)

運賃、および消費税は、記載価格には、含まれていません。

[トップページに戻る] [注文書] [見積り依頼] TEL 0729-64-8663 FAX 0729-61-4874

営業時間 AM9:00~PM7:00 営業日 月曜日~金曜日 定休日 土曜日 日曜日 祝日