|
|
|
│作業台 │台車 │手動リフター │電動リフター │油圧ハンドリフター │ステンレス作業台 │プレス製台車 │油圧リフター │電動テーブルリフト │
│作業用イス(オフィスチェア) │鉄板台車 │コゾウリフター │ハンドパレット │台車リフト │ステンレス台車 │パレット台車 │安全用品 │
│電動台車 │マルチキャリー │ドラム缶運搬車 │ワゴン │パレット │平台車 │二輪車 │ガスボンベドラム缶運搬車 │
│アルミ運搬車 │ホワイトラスティー │棚 │ボックスパレット │コンテナ │マワール │ベルト荷締機 │高所作業用品 │
│ピッキングカー │コンテナ台車 │タンク │キャスター │電動階段運搬車 │ゴミ箱 │コンベア │ステンレス機器 │保管庫 │作業マット│
│集塵機 │傘立て │ドラムポンプケミカルポンプ │農業関連物流機器 │保冷庫 │その他の物流機器 │中古物流機器│
≪物流機器メインページ≫
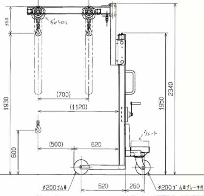
| ジブ型ハンドリフト 品番 SHGL150 三面図 (詳細図) | ||||||||||||||||
|
||||||||||||||||
運賃、および消費税は、記載価格には、含まれていません。
