|
|
│作業台
│台車
│手動リフター
│電動リフター
│油圧ハンドリフター
│ステンレス作業台
│プレス製台車
│油圧リフター
│電動テーブルリフト │
│作業用イス(オフィスチェア)
│鉄板台車
│コゾウリフター
│ハンドパレット
│台車リフト
│ステンレス台車
│パレット台車
│安全用品 │
│電動台車
│マルチキャリー
│ドラム缶運搬車
│ワゴン
│パレット
│平台車
│二輪車
│ガスボンベドラム缶運搬車 │
│アルミ運搬車
│ホワイトラスティー
│棚
│ボックスパレット
│コンテナ
│マワール
│ベルト荷締機
│高所作業用品 │
│ピッキングカー
│コンテナ台車
│タンク
│キャスター
│電動階段運搬車
│ゴミ箱
│コンベア
│ステンレス機器
│保管庫
│作業マット│
│集塵機
│傘立て
│ドラムポンプケミカルポンプ
│農業関連物流機器
│保冷庫
│その他の物流機器
│中古物流機器│
≪物流機器メインページ≫
| 移動ポールキャスターリフト/品番 M116LF12A-H20K |
【詳細表示】 |
||||||||||||||||||||||||||||||||||||||||||||||||||||||||||||||||||||||||||||||||||||||||||||||||||||||||||||||||||||||||||||||||||||||||||||||||||||||||||||||||||||||||||||||||||
| 商品番号 | M116LF12A-H20K | 価格 | |||||||||||||||||||||||||||||||||||||||||||||||||||||||||||||||||||||||||||||||||||||||||||||||||||||||||||||||||||||||||||||||||||||||||||||||||||||||||||||||||||||||||||||||||
![]() |
簡易エレベーターとして立体化された都市企業の商品の上下運搬、建築土木業界の資材運搬、みかん倉庫・納屋の立体化利用、レストラン・料亭の配膳等、巾広い企業で愛用されています。 | 移動ポールキャスターリフト 品番 M116LF12A-H20K 廃番 |
|||||||||||||||||||||||||||||||||||||||||||||||||||||||||||||||||||||||||||||||||||||||||||||||||||||||||||||||||||||||||||||||||||||||||||||||||||||||||||||||||||||||||||||||||
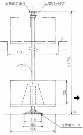
| ■特長 ●落下防止装置付きにより安心してご使用できます。 ●自動注油により、レール摩耗を防ぎます。 ●停止位置自動選定(3段階オプション)2階用停止位置がマイコン制御によって自動選定できます。 ●上下共自動停止置付で、停止位置は自由に設定できます。 ●コンパクト設計なので簡単に設置できます。 ●一般家庭用電源100Vが使用できます。 ●揚程に応じてH20〜H100まで揃えています。 ●保守点検が容易にできます。 ■中間固定金具 ![]() ■上部固定金具 ![]() ■制御BOX ![]() ■寸法図 ![]() ![]() ![]() ■タイプ仕様
|
|||||||||||||||||||||||||||||||||||||||||||||||||||||||||||||||||||||||||||||||||||||||||||||||||||||||||||||||||||||||||||||||||||||||||||||||||||||||||||||||||||||||||||||||||||
運賃、および消費税は、記載価格には、含まれていません。

[トップページに戻る][注文書] [見積り依頼] TEL0729-64-8663 FAX 0729-61-4874
営業時間 AM9:00〜PM7:00 営業日 月曜日〜金曜日 定休日 土曜日 日曜日 祝日