|
|
│作業台
│台車
│手動リフター
│電動リフター
│油圧ハンドリフター
│ステンレス作業台
│プレス製台車
│油圧リフター
│電動テーブルリフト │
│作業用イス(オフィスチェア)
│鉄板台車
│コゾウリフター
│ハンドパレット
│台車リフト
│ステンレス台車
│パレット台車
│安全用品 │
│電動台車
│マルチキャリー
│ドラム缶運搬車
│ワゴン
│パレット
│平台車
│二輪車
│ガスボンベドラム缶運搬車 │
│アルミ運搬車
│ホワイトラスティー
│棚
│ボックスパレット
│コンテナ
│マワール
│ベルト荷締機
│高所作業用品 │
│ピッキングカー
│コンテナ台車
│タンク
│キャスター
│電動階段運搬車
│ゴミ箱
│コンベア
│ステンレス機器
│保管庫
│作業マット│
│集塵機
│傘立て
│ドラムポンプケミカルポンプ
│農業関連物流機器
│保冷庫
│その他の物流機器
│中古物流機器│
≪物流機器メインページ≫
| 雨水貯水タンク/品番 M406D-100L/M406D-220L | 【詳細表示】 | |||||||||||||||||||||||||||||||||||||||||||||||||||||
| 商品番号 | M406D-100L/M406D-220L | 価 格 | ||||||||||||||||||||||||||||||||||||||||||||||||||||
![]() |
家庭での環境対策を考え、限りある資源を有効に活用するため雨水活用の製品をご提案します。 ●花壇や家庭菜園の散水に。 ●庭木の散水や掃除用の雑水に ●災害時の水の確保に |
雨水貯水タンク 品番 M406D-100L 品番 M406D-220L 廃番 |
||||||||||||||||||||||||||||||||||||||||||||||||||||
■シリーズ
■M406D-100Lの特長 ●大型フタ採用で、内部の洗浄が簡単にできます。 ●蚊の侵入を防ぎ、ボウフラが発生しにくい設計。 ●取り付け簡単 ●アメポイント付 ■M406D-220Lの特長 ●場所を選ばないスマートで機能的なデザイン。 ●安定した形状で大容量を貯留できます。 ●取り付け簡単。 ●角アメポイント付き。
■壁にピッタリ設置 ●裏面には接続パイプの納溝を設け、壁に沿って設置できます。 @安心蓋付でゴミや虫が入らず掃除もしやすい。 A取水位置を左右選べます。 ![]() ■設置場所について ●転倒防止のため水平な所を設置してください。 ●凹凸の激しい場所や斜面へ設置は避けてください。 ●斜面やデコボコ面に設置する必要がある時は敷板をしてください。 ●できるだけ壁面に添って設置してください。 ■雨とい設置用 ●既存の竪といに簡単に取付けられます。 ●大雨でも竪といの流れを妨げて逆流することはありません。 ●簡易フィルターが雨水の砂・ゴミを取り除き、フィルターの洗浄も簡単。
■雨水取水イメージ図 雨水は、フィルターを通りホースを伝って貯留容器に流れ込みます。 雨量が多い場合でも、余剰雨水はアメポイント内で分岐されて排水溝へと流れていきます。
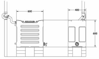
■寸法図
■仕様
|
||||||||||||||||||||||||||||||||||||||||||||||||||||||
運賃、および消費税は、記載価格には、含まれていません。

[トップページに戻る][注文書] [見積り依頼] TEL0729-64-8663 FAX 0729-61-4874
営業時間 AM9:00〜PM7:00 営業日 月曜日〜金曜日 定休日 土曜日 日曜日 祝日