シロ産業

1976年創業 東大阪市商工会議所会員 2005年度IT百選企業。国公立大学、研究所 自衛隊、警察庁 など主な国公立機関に納入実績多数 医療機器販売業免許取得済み

包装資材 包装機械 物流機器 測定機器 洗剤ケミカル 蛍光灯 季節商品(夏) 季節商品(冬)
弱電工具 ホイスト 環境機器 掃除機 ムーブテック 切削工具 機械工具調理厨房機器
研究室用品 安全防犯防災用品 エクステリア 新商品情報 在庫処分情報


作業台 - 作業用イス- 台車 - プレス製台車 -鉄板台車 - 手動リフター - コゾウリフター - パレット台車 - マルチキャリー - 平台車
二輪車ガスボンベドラム缶運搬車 - アルミ運搬車油圧ハンドリフター電動テーブルリフトハンドパレット
ホワイトラスティー
- マワール - コンテナボックスパレットパレット - 電動台車 -ベルト荷締機
コンテナ台車 - 台車リフト - タンク - キャスター電動階段運搬車ゴミ箱 -物流機器メインページ

関連商品一覧

中古フォークリフト/ 品番 6FBRK9Z-V300
問合せ番号 Z-0349-1

【詳細表示】

商品番号 6FBRK9Z-V300

価 格

メーカー点検完了済み
定額荷重:900Kg
マスト:3m 2001年製
 三輪式リーチ
中古フォークリフト
品番 6FBRK9Z-V300
問合せ番号 Z-0349-1
完売


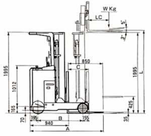
■寸法図



■仕様
品番 6FBRK9Z-V300
最大荷重(W) (kg) 900
荷重中心(LC) (mm) 500
最大揚程(L) (mm) 3000
フリーリフト(mm) 425
上昇速度 無負荷(mm/s) 430
負荷(mm/s) 265
走行速度 無負荷(km/h) 10.5
負荷(km/h) 9
最小旋回半径(R) (mm) 1265
登板能力 1/10
寸法 全長(A) (mm) 1740
全幅(mm) 990
全高ヘッドガード(mm) 1995
マスト高さ(mm) 1995
作業時最大高さ(mm) 3635
ホイールスペース(B) (mm) 1050
トレッド 前輪(mm) 885
リーチストローク(C) (mm) 460
フォーク長さ(mm) 850
フォーク調整間隔 最大(mm) 625
最小(mm) 220
最低地上高(mm) 60
車輌質量(kg) 1600
タイヤ 前輪 ゴム 254×102
後輪(ドライブ用) ゴム 315×145
電動機 走行用 制御 トランジスタチョッパー
出力(kW) 2.5
荷役用 制御 電磁接触器
出力(kW) 4.5
パワステ用 制御 トランジスタチョッパー
出力(kW) 0.3
バッテリー 電圧(V) 24
容量 (AH/5HR) 280
充電装置 形式 車載形、自動準定電圧
入力電源 3φ、200〜220V、50/60Hz
容量(kVA) 3.8

運賃、および消費税は、記載価格には、含まれていません。

[トップページに戻る][注文書] [見積り依頼] TEL0729-64-8663 FAX 0729-61-4874
営業時間 AM9:00〜PM7:00 営業日 月曜日〜金曜日 定休日 土曜日 日曜日 祝日