シロ産業

1976年創業 東大阪市商工会議所会員 2005年度IT百選企業。国公立大学、研究所 自衛隊、警察庁 など主な国公立機関に納入実績多数 医療機器販売業免許取得済み

包装資材 包装機械 物流機器 測定機器 洗剤ケミカル 蛍光灯 季節商品(夏) 季節商品(冬)
弱電工具 ホイスト 環境機器 掃除機 ムーブテック 切削工具 機械工具調理厨房機器
研究室用品 安全防犯防災用品 エクステリア 新商品情報 在庫処分情報


作業台 - 作業用イス- 台車 - プレス製台車 -鉄板台車 - 手動リフター - コゾウリフター - パレット台車 - マルチキャリー - 平台車
二輪車ガスボンベドラム缶運搬車 - アルミ運搬車油圧ハンドリフター電動テーブルリフトハンドパレット
ホワイトラスティー
- マワール - コンテナボックスパレットパレット - 電動台車 -ベルト荷締機
コンテナ台車 - 台車リフト - タンク - キャスター電動階段運搬車ゴミ箱 -物流機器メインページ

関連商品一覧

中古カントー電動リフター/品番 50-18-OP
問合せ番号 Z-0349-3
【詳細表示】
商品番号 50-18-OP

価 格

■特長
メーカー点検完了済み
バッテリー交換済み。
昇降はバッテリー電動油圧式で、走行は手動式。

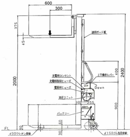
・フォークの巾は調整することが出来ます。
・フォーク部(荷受部)の上昇は上下操作レバーを押すだけで簡単楽々操作。
下降は上下操作レバーを手前に引くだけでワンタッチで下降速度が調整できます。
・フットブレーキは1タッチ2ロックの足踏式・・・・・軽い力で簡単操作。
・前方が見やすい透明な安全カバーが取付けてあり作業者の安全を守ります。
・バッテリーは自動車用12Vを使用し、充電器は入力AC100V用が付いています。(別置式)
・バッテリーの充電時期は、バッテリーチェッカーが知らせます。
・バッテリーの充電は充電器のプラグを接続するだけです。
中古カントー電動リフター
品番 50-18-OP
問合せ番号 Z-0349-3
完売

入力電源・AC100V50/60Hz/出力・DC12V8A
・入力電源と充電用プラグを接続し、電源スイッチを入れるだけで自動充電します。
・内蔵のダブルタイマーにより、充電時間を制御しバッテリーの過充電を防止します。
・充電中、バッテリーの電圧が14.6V(約90%充電)になると、補充電タイマーが作動し、5時間後に自動的に充電を停
止します。また、バッテリーが 劣化して充電を行っても14.6Vまで電圧が上がらない場合は、充電開始に作動する15
時間タイマーにより、最大15時間後には自動的に充電が停止します。

<注意>
1.1ヶ月以上ご使用にならない場合は必ずマイナス側のバッテリーターミナルを外して下さい。バッテリーの放電が少
なくなり長持ちします。
2.充電する前にバッテリー液を必ず点検して下さい。液面が低下し極板が露出していると大変危険です。


■仕様


■寸法図

運賃、および消費税は、記載価格には、含まれていません。

[トップページに戻る][注文書] [見積り依頼] TEL0729-64-8663 FAX 0729-61-4874
営業時間 AM9:00〜PM7:00 営業日 月曜日〜金曜日 定休日 土曜日 日曜日 祝日