ハンドリフター

手動リフター

業務機器&資材 シロ産業 HOME
新製品情報 在庫処分情報 会社概要
見積依頼 ご注文フォーム お問い合わせ
業務用機材商社一筋で、創業41年。東大阪市商工会議所会員、2005年度IT百選企業。
国公立大学、研究所、自衛隊、警察庁 など主な国公立機関に納入実績多数。医療機器販売業免許取得済

包装資材 包装機械 物流機器 測定機器 洗剤 ケミカル 蛍光灯 季節品-夏 季節品-冬 弱電工具 ホイスト 環境機器 掃除機 ムーブテック 切削工具 機械工具調理厨房機器 研究室用品 安全防犯防災品 エクステリア 新商品 在庫処分


カテゴリー第二分類(物流機器)
物流機器カテゴリー一覧を見る
作業台軽量作業台中量作業台重量作業台昇降式作業台ステンレス作業台台車軽量台車樹脂台車レベラー台車ストッパー付台車静音台車折りたたみ台車プレス製台車網カゴ台車長尺台車/長物台車鉄板台車二段台車三段台車一輪車二輪車アルミ製二輪/三輪運搬車ガスボンベ運搬車ドラム缶運搬車ステンレス台車アルミ台車パレット台車コンテナ台車電動台車牽引車平台車アルミ製運搬車エンジンクローラー運搬車マルチキャリー電動階段運搬車リヤカーアルミリヤカーピッキングカー手動リフターエアーリフト電動フォークリフト電動リフター電動テーブルリフト手動テーブルリフト手動油圧リフター油圧リフター油圧ハンドリフターコゾウリフターハンドパレット台車リフトステンレスリフターステンレス台車リフトエアコン室外機リフター集塵機一斗缶ペール缶ドラム缶反転リフトボンベスタンド一斗缶・ペール缶スタンドドラム缶ヒーター一斗缶ペール缶ドラム缶給油コックドラム缶液面計・残量ゲージ攪拌混合機ワゴンステンレスワゴンショッピングカートショッピングバスケットホワイトラスティースリムカートステンレス棚パレットプラスチックパレット再生エコパレット樹脂パレットアルミパレット輸出用パレットネスティングパレットラックボックスパレットパレットカバータンクポリエチレン製タンクステンレスタンク雨水タンクFRPタンク耐熱タンク貯水タンクドラム缶ドラムポンプ/ケミカルポンプコンテナ防水コンテナアルミコンテナ樹脂コンテナ折り畳み式コンテナマワールターンテーブルベルト荷締機高所作業用品脚立・はしご・踏み台安全用品作業用イス(オフィスチェア)クリーンルーム用チェア導電作業椅子・導電チェアライン引きラインテープキャスターゴミ箱分別ゴミ箱ステンレスゴミ箱防犯対策用窓付ゴミ箱傘立てコンベアステンレス機器テント/シート/網/カーテン油圧ジャッキエアー搬送機器保管庫ステンレス保管庫PCB廃棄物保管庫保冷庫/保温庫作業マット/フロアマット農業関連物流機器その他の物流機器中古物流機器

関連商品一覧

ハンドリフター/品番 SHLシリーズ 【詳細表示】
商品番号 SHLシリーズ 価格
●材質はスチールです。
●世界唯一リンクチェーンを使用し、メンテナンスも簡単。
●SHL100/200はフォークの着脱が容易で、携帯用としても使用できます。
●新デザイン採用で、どんな作業環境にもマッチします。
ハンドリフター
品番 SHLシリーズ
廃番
後継機種は下記をご確認ください。
■タイプ
SHL100A/200A SHL300 SHL350/500


■仕様
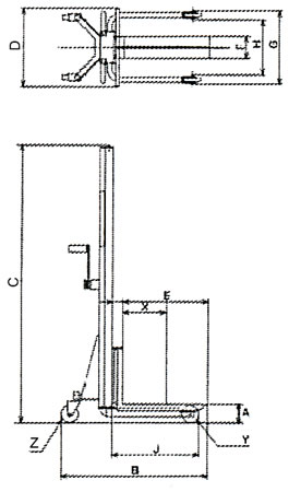
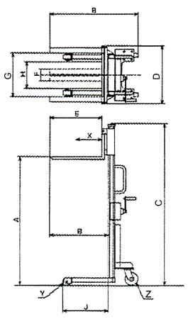
型式 荷重 荷重中心
(mm)
揚程
(mm)
全長
(mm)
全高
(mm)
全幅
(mm)
フォーク(mm)
長×幅×厚 外側間隔
(X) (A) (B) (C) (D) (E) (F)
SHL100A 100kg 250 110~1250 880 1650 460 500×60×40 130~440
SHL100B 100kg 250 110~950 880 1350 460 500×60×40 130~440
SHL200A 200kg 250 110~1250 880 1650 460 500×60×40 130~440
SHL200B 200kg 250 110~950 880 1350 460 500×60×40 130~440
SHL300 300kg 250 90~1200 930 1650 600 500×60×40 90~580
SHL350 350kg 300 90~1500 980 1890 690 600×60×30 130~630
SHL500 500kg 300 90~1500 1050 1900 730 600×75×45 160~690
SHL800 800kg 300 150~1500 1050 1960 730 600×75×45 220~690
型式 前脚(mm) 前輪(mm) 後輪(mm) 1回転の
揚程
自重
外幅(G) 内幅(H) 長さ(J) (Y) (Z)
SHL100A 430 320 510 φ100 φ100 約90 約38kg
SHL100B 430 320 510 φ100 φ100 約90 約35kg
SHL200A 430 320 510 φ100(ウレタン) φ100 約45 約45kg
SHL200B 430 320 510 φ100(ウレタン) φ100 約45 約41kg
SHL300 470 340 510 φ90×35 φ125 約21 約70kg
SHL350 510 340 520 φ90×50 φ150 約21 約83kg
SHL500 540 350 535 φ90×65 φ200 約14 約107kg
SHL800 540 350 650 φ150(ウレタン) φ200 約14 約150kg


■寸法図
SHL100A・B/SHL200A・B/SHL300 SHL350/SHL500/SHL800

運賃、および消費税は、記載価格には、含まれていません。

[トップページに戻る] [注文書] [見積り依頼] TEL 0729-64-8663 FAX 0729-61-4874

営業時間 AM9:00~PM7:00 営業日 月曜日~金曜日 定休日 土曜日 日曜日 祝日