油圧式マンホール蓋垂直昇降リフター1TON

その他の物流機器

業務機器&資材 シロ産業 HOME
新製品情報 在庫処分情報 会社概要
見積依頼 ご注文フォーム お問い合わせ
業務用機材商社一筋で、創業41年。東大阪市商工会議所会員、2005年度IT百選企業。
国公立大学、研究所、自衛隊、警察庁 など主な国公立機関に納入実績多数。医療機器販売業免許取得済

包装資材 包装機械 物流機器 測定機器 洗剤 ケミカル 蛍光灯 季節品-夏 季節品-冬 弱電工具 ホイスト 環境機器 掃除機 ムーブテック 切削工具 機械工具調理厨房機器 研究室用品 安全防犯防災品 エクステリア 新商品 在庫処分


カテゴリー第二分類(物流機器)
物流機器カテゴリー一覧を見る
作業台軽量作業台中量作業台重量作業台昇降式作業台ステンレス作業台台車軽量台車樹脂台車レベラー台車ストッパー付台車静音台車折りたたみ台車プレス製台車網カゴ台車長尺台車/長物台車鉄板台車二段台車三段台車一輪車二輪車アルミ製二輪/三輪運搬車ガスボンベ運搬車ドラム缶運搬車ステンレス台車アルミ台車パレット台車コンテナ台車電動台車牽引車平台車アルミ製運搬車エンジンクローラー運搬車マルチキャリー電動階段運搬車リヤカーアルミリヤカーピッキングカー手動リフターエアーリフト電動フォークリフト電動リフター電動テーブルリフト手動テーブルリフト手動油圧リフター油圧リフター油圧ハンドリフターコゾウリフターハンドパレット台車リフトステンレスリフターステンレス台車リフトエアコン室外機リフター集塵機一斗缶ペール缶ドラム缶反転リフトボンベスタンド一斗缶・ペール缶スタンドドラム缶ヒーター一斗缶ペール缶ドラム缶給油コックドラム缶液面計・残量ゲージ攪拌混合機ワゴンステンレスワゴンショッピングカートショッピングバスケットホワイトラスティースリムカートステンレス棚パレットプラスチックパレット再生エコパレット樹脂パレットアルミパレット輸出用パレットネスティングパレットラックボックスパレットパレットカバータンクポリエチレン製タンクステンレスタンク雨水タンクFRPタンク耐熱タンク貯水タンクドラム缶ドラムポンプ/ケミカルポンプコンテナ防水コンテナアルミコンテナ樹脂コンテナ折り畳み式コンテナマワールターンテーブルベルト荷締機高所作業用品脚立・はしご・踏み台安全用品作業用イス(オフィスチェア)クリーンルーム用チェア導電作業椅子・導電チェアライン引きラインテープキャスターゴミ箱分別ゴミ箱ステンレスゴミ箱防犯対策用窓付ゴミ箱傘立てコンベアステンレス機器テント/シート/網/カーテン油圧ジャッキエアー搬送機器保管庫ステンレス保管庫PCB廃棄物保管庫保冷庫/保温庫作業マット/フロアマット農業関連物流機器その他の物流機器中古物流機器

関連商品一覧

油圧式マンホール蓋垂直昇降リフター1TON/品番 M2916HMV-1T 【詳細表示】
商品番号 M2916HMV-1T 価 格
油圧式マンホール蓋垂直昇降リフター1TON/M2916HMV-1T 油圧式マンホール蓋垂直昇降リフター1TON
品番 M2916HMV-1T
価格は下記をご覧ください
油圧式マンホール蓋垂直昇降リフターとは、油圧シリンダー能力1tの力によってマンホールの蓋を簡単に開閉し、前後3輪のキャスターでそのままマンホールの蓋を楽々移動させることができる機械です。
マンホールの蓋のハンガー部分にアジャスト式のフックを引っ掛けて、本体ジャッキレバーを操作すると、油圧シリンダーが伸び、テコの原理で直径800mmまでのマンホールの蓋を楽々開けることができる仕組みになっています。

商品番号 M2916HMV-1T

機械を使わずに作業した場合は人が屈んで作業することになり、作業する方の腰への負担も大きく、開けるマンホールの数が多いと腰を痛めてしまう可能性もありました。
また、人力でマンホールの蓋を移動させる作業には、うっかり指を挟んだり落としてしまうリスクもあり危険です。
しかし、マンホール蓋昇降リフターを利用すれば、人が屈んだり力をかけることなく簡単にマンホールの蓋を開けて移動させることができるため、作業員への身体的負担を軽減でき、作業効率も上がって、マンホールの蓋を移動する際の安全性も向上させることができます。
開けるマンホールの数が多いときでも作業が楽になり「あって良かった!」と思える機械です。

公道のみならず、マンションや学校の敷地内、工場などの施設内にもマンホールはあります。
当社では販売の他に3日間からのレンタルもしておりますので、恒常的に使用されるものについてはご購入を、たまにお使いになる場合や作業量が多く臨時的に台数を増やすときはレンタルのご利用を、お客様の業務状況に応じてご検討いただければと思います。


マンホール蓋昇降リフターは、直径800mmまでのマンホールの蓋に対応しています。
可動式アジャストクランプとフックでマンホール蓋の左右2箇所を引っ掛け、中心レバーの上下作業によりテコの原理でマンホール蓋を持ち上げます。
マンホール蓋昇降リフターには前後3輪のキャスターが付いており、マンホールの蓋を楽々移動させることができます。
前後3輪のキャスターには、フロアストッパのブレーキロックを標準装備し、より安全性を高めています。
本体重量は35kgと軽く、キャスター付きなので、機械自体の取り扱いも容易です。


マンホールの蓋の種類によってハンガー部分のサイズや形状は異なりますので、必ず、マンホール蓋昇降リフター付属のフック寸法をご確認いただき、目的のマンホール蓋に対応可能か否かをご確認ください。
目的のマンホール蓋が付属のフックで対応できない場合は、その都度メーカーへお問い合わせ下さい。



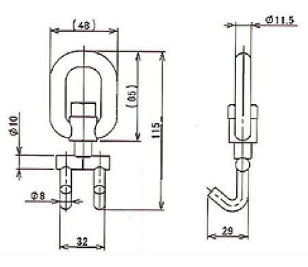
■寸法図






フック(単位:mm)


■仕様
品番 M2916HMV-1T
能力(t) 1
揚重ストローク(mm) 93
アジャストフック調整幅(mm) 120~790
対応マンホール巾(mm) 800
本体重量(kg) 35



■手動マンホール蓋ネオジム磁石吸着開閉器300Kg/品番 M2916MG-300KG

マグネット式マンホール開閉器とは、最大能力300kgの強力な18個のネオジウム磁石(ネオジウム製マグネット)の力でマンホールに吸着し、持ち上げるだけでマンホールの蓋を容易に開けることのできる機器です。
マンホールの蓋が鉄製など磁石が効くものであれば、マンホールの形状は問わず、どんな形のマンホールにも使用でき、ベース下のバーを伸ばせば、蝶番式のマンホール蓋も容易に開けることができます。(マンホールの蓋が強く固着しているなどの場合は開けられないこともあります。その場合はマンホール蓋昇降リフターをご利用ください。)

さらに、マグネット式マンホール開閉器には、合体させるとテコの原理でマンホールの蓋を楽々持ち上げることができるオプション品「車輪付き折り畳み式レバー」があります。
車輪付き折り畳み式レバーを利用すると、テコの力でマンホールの蓋を開けることができ、そのままレバーに付いている車輪でマンホールの蓋を移動することもできるので、腰に負担がかかりません。

また、磁石の効く鉄製の蓋であれば、形状に制限されることなく使用できるので、側溝や排水溝の蓋として使われているグレーチングなども、腰を屈めることなく持ち上げて簡単に開けることができます。

●強力なネオジウム磁石18個でしっかり吸着!最大持ち上げ能力300kg
●様々な形状のマンホールに対応できます。
●車両付きレバー(M2916MF-450KG)と合わせて使用すれば、テコの力で腰に負担をかけません。
●簡単操作のため誰でも楽々と扱えます。
●マグネット式マンホール開閉器本体のサイズは25.5cm×55~91cmとコンパクトで、重量は7kgと軽量
持ち運びも便利!


M2916MF-450KG M2916MG-300KG


■使い方
●マグネット式マンホール開閉器で直接マンホールを持ち上げる
① マグネット式マンホール開閉器をマンホールの片側に置き、マグネット式マンホール開閉器のハンドルを持ち上げると、マンホールの蓋が持ち上がります。
② マンホール蓋からマグネット式マンホール開閉器を引き離すには、ハンドルを横方向に振ります。


●マグネット式マンホール開閉器のベース下のバーを伸ばして持ち上げる
① マグネット式マンホール開閉器をマンホールの片側に置き、マグネット式マンホール開閉器のベース下のバーを伸ばします。
② バーの先端をマンホールの蓋の上に掛け、マグネット式マンホール開閉器のハンドルを持ち上げると、テコの原理でマンホールの蓋が持ち上がります。


●オプションの車輪付きレバーとマグネット式マグネット開閉式器を合体して使用する
① マグネット式マンホール開閉器をマンホールの片側に置き、マグネット式マンホール開閉器のハンドル下部に、オプション品の車輪付き折り畳み式レバーを差し込みます。
② オプション品の車輪付き折り畳み式レバーを下に押し下げ、テコの原理でマンホールの蓋を持ち上げます。


品番 M2916MF-450KG
能力(kg) 450
寸法(cm)長さ×高さ 40~56×108~160
本体重量(kg) 10
品番 M2916MG-300KG
能力(kg) 300
寸法(cm)長さ×高さ 25.5×55~91
ベース寸法(cm) 28×12
本体重量(kg) 7

運賃、および消費税は、記載価格には、含まれていません。

[トップページに戻る] [注文書] [見積り依頼] TEL 0729-64-8663 FAX 0729-61-4874

営業時間 AM9:00~PM7:00 営業日 月曜日~金曜日 定休日 土曜日 日曜日 祝日