密閉型セパレート撹拌機

攪拌混合機

業務機器&資材 シロ産業 HOME
新製品情報 在庫処分情報 会社概要
見積依頼 ご注文フォーム お問い合わせ
業務用機材商社一筋で、創業41年。東大阪市商工会議所会員、2005年度IT百選企業。
国公立大学、研究所、自衛隊、警察庁 など主な国公立機関に納入実績多数。医療機器販売業免許取得済

包装資材 包装機械 物流機器 測定機器 洗剤 ケミカル 蛍光灯 季節品-夏 季節品-冬 弱電工具 ホイスト 環境機器 掃除機 ムーブテック 切削工具 機械工具調理厨房機器 研究室用品 安全防犯防災品 エクステリア 新商品 在庫処分


カテゴリー第二分類(物流機器)
物流機器カテゴリー一覧を見る
作業台軽量作業台中量作業台重量作業台昇降式作業台ステンレス作業台台車軽量台車樹脂台車レベラー台車ストッパー付台車静音台車折りたたみ台車プレス製台車網カゴ台車長尺台車/長物台車鉄板台車二段台車三段台車一輪車二輪車アルミ製二輪/三輪運搬車ガスボンベ運搬車ドラム缶運搬車ステンレス台車アルミ台車パレット台車コンテナ台車電動台車牽引車平台車アルミ製運搬車エンジンクローラー運搬車マルチキャリー電動階段運搬車リヤカーアルミリヤカーピッキングカー手動リフターエアーリフト電動フォークリフト電動リフター電動テーブルリフト手動テーブルリフト手動油圧リフター油圧リフター油圧ハンドリフターコゾウリフターハンドパレット台車リフトステンレスリフターステンレス台車リフトエアコン室外機リフター集塵機一斗缶ペール缶ドラム缶反転リフトボンベスタンド一斗缶・ペール缶スタンドドラム缶ヒーター一斗缶ペール缶ドラム缶給油コックドラム缶液面計・残量ゲージ攪拌混合機ワゴンステンレスワゴンショッピングカートショッピングバスケットホワイトラスティースリムカートステンレス棚パレットプラスチックパレット再生エコパレット樹脂パレットアルミパレット輸出用パレットネスティングパレットラックボックスパレットパレットカバータンクポリエチレン製タンクステンレスタンク雨水タンクFRPタンク耐熱タンク貯水タンクドラム缶ドラムポンプ/ケミカルポンプコンテナ防水コンテナアルミコンテナ樹脂コンテナ折り畳み式コンテナマワールターンテーブルベルト荷締機高所作業用品脚立・はしご・踏み台安全用品作業用イス(オフィスチェア)クリーンルーム用チェア導電作業椅子・導電チェアライン引きラインテープキャスターゴミ箱分別ゴミ箱ステンレスゴミ箱防犯対策用窓付ゴミ箱傘立てコンベアステンレス機器テント/シート/網/カーテン油圧ジャッキエアー搬送機器保管庫ステンレス保管庫PCB廃棄物保管庫保冷庫/保温庫作業マット/フロアマット農業関連物流機器その他の物流機器中古物流機器

関連商品一覧

密閉型セパレート撹拌機/品番 M1267B-10G6-15SM 【詳細表示】
商品番号 M1267B-10G6-15SM 価 格
密閉型セパレート撹拌機M1267B-10G6-15SM 密閉型セパレート撹拌機
品番 M1267B-10G6-15SM
価格は下記をご覧下さい
使用中の容器が撹拌機に変わります。改造することなく取付けが可能です。
底・側面取付撹拌機RBh型は脱着可能な駆動部と投げ込み式の回転翼を使用することで簡単に撹拌を行うことが可能です。

密閉型セパレート撹拌機M1267B-10G6-15SM


●既存の容器がそのまま使える
使用中または使わなくなった容器に、改造などをすることなく取付可能です。また、容器の素材は磁力の影響を受けない材質であれば問題ありませんのでテフロンコーティングした容器でも使用可能です。

●簡単な投げ込み式回転翼
投げ込み式の回転翼なので、SUS304やSUS316Lの他に全て樹脂製の回転翼が製作可能です。
例:PTFEの本体にPEEK材の固定軸など

●容器の底と擦れ合わない回転翼


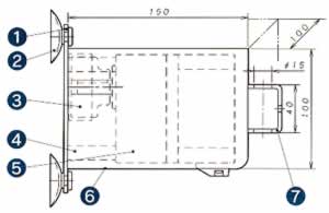
■部品構成



■用途
●化学、ファインケミカル、化粧品、食品系のスラリーのない液体撹拌
●構成部品の材質がPP材、ステンレス材、シリコンゴムに対応の液体撹拌
●構成部品の材質がPTFE材、PEEK材、シリコンゴムに対応の液体撹拌
●シリコンゴムが使用できない場合、磁気結合で撹拌翼を保持


■使用例
固定容器の使用例 移動容器の使用例
固定容器の場合には、架台部に駆動モーター部が
設置されています。
容器にヘルール金具を付けると
ワンタッチでセットできます。


■共通仕様
回転部 撹拌翼 PTFE製またはSUS製
本体と羽根 PP製(標準)、特別にPTFE製もあります。
軸受 PP製のボールベアリング(標準)、固形物混入撹拌にはスリーブ式を企画
固定軸 SUS304製で吸盤はシリコンゴム(標準)、その他の材質にも対応します
モーター
駆動部
吸盤材質 エラストマー樹脂(吸盤固定式)
回転 30~300rpm
モーター DCブラシレス採用、一定トルク、軽量型、少ない発熱
吸盤耐荷重 0.6kgf/個(4個で2.4kgf)
その他 モーター40Wは3.4kgf、90Wは3.7kgfです。
重さを補助するスタンド棒が付属しています
コントローラー部  吸盤材質 エラストマー樹脂
モータ間ケーブル 0.5m以内
その他 タンク側面に吸盤で取り付けます。
操作面は上向きで使いやすい。防水カバー付き
操作面には撹拌スタートスイッチと速度調整ツマミが付いています
オプションにて机上型遠隔操作盤に中継ケーブル1,2,3,5,10mがあります
オプションにて回転計その他ご希望に応じます
※安全のため簡易防水カバーの後部に重量保持のためスタンド棒を必ずセットして下さい。

■仕様
品番 M1267B-10G6-15SM M1267B-25G6-20SM
撹拌液量※1 側面 10L~30L 30L~60L
底面 10L~20L 20L~50L
液粘性 1cp~10cp 1cp~10cp
駆動部重さ 1.5kgf 1.7kgf
モータ 10W 25W
電圧/電流 100V-0.7A 100V-1.1A
回転数※2 30~300 30~300
駆動トルク 0.24Nm 0.61Nm
撹拌翼径 φ120 φ140
撹拌翼重さ 0.4kgf以内 0.4kgf以内
翼外周速 1.9m/sec 2.2m/sec
※1:撹拌液量は、タンク内寸と液深がほぼ1:1の条件です
※2:撹拌回転数は、反撥振動が発生しない範囲でご使用下さい


品番 M1267B-40G6-20SM M1267B-90G6-25SM
撹拌液量 側面 60L~100L 100L~150L
底面 50L~80L 80L~100L
液粘性 1cp~10cp 1cp~10cp
駆動部重さ 3.4kgf 3.7kgf
モータ 40W 90W
電圧/電流 100V-1.7A 100V-2.5A
回転数※2 30~300 30~300
駆動トルク 0.97Nm 2.20Nm
撹拌翼径 φ160 φ180
撹拌翼重さ 0.5kgf以内 0.5kgf以内
翼外周速 2.5m/sec 2.8m/sec
※1:撹拌液量は、タンク内寸と液深がほぼ1:1の条件です
※2:撹拌回転数は、反撥振動が発生しない範囲でご使用下さい



■撹拌翼部の図


番号 名称 材質 φ60型撹拌翼径 φ70型撹拌翼径
袋ナット SUS304(SUS316L) φA=120 φA=150
ストップリング PFA φA=130 φA=160
ベアリング PP(SUS630・セラミック) φA=140 φA=170
固定軸 SUS304(SUS316L) φA=150 φA=180
撹拌翼 PP(PVC・PTFE) φA=160 φA=190
吸盤 シリコン φA=170 φA=200


■モーター駆動部の図 (モーター10W 25W 40W 90W)
M1267B-10G6-15SM M1267B-25G6-20SM
M1267B-40G6-20SM M1267B-90G6-25SM

番号 名称 材質
駆動部固定板 ジュラコン POM (白)
吸盤 エラストマー樹脂
駆動磁石 SS400+アルミ
固定性 SUS304
駆動モーター DCブラシレスモーター
カバー SUS340
駆動部保持金具 SUS340



<よくある問い合わせ>
Q. この製品は防爆仕様でしょうか?
A. 防爆仕様ではありません。

Q. 耐熱温度は何℃でしょうか?
A. 磁石の耐熱は常用130℃までになりますが、モーターの周辺温度は0~+40℃程度とお考え下さい。

運賃、および消費税は、記載価格には、含まれていません。

[トップページに戻る] [注文書] [見積り依頼] TEL 0729-64-8663 FAX 0729-61-4874

営業時間 AM9:00~PM7:00 営業日 月曜日~金曜日 定休日 土曜日 日曜日 祝日