フォークリフト車輪洗浄機
調理厨房機器
業務用機材商社一筋で、創業41年。東大阪市商工会議所会員、2005年度IT百選企業。
国公立大学、研究所、自衛隊、警察庁 など主な国公立機関に納入実績多数。医療機器販売業免許取得済
■包装資材
■包装機械
■物流機器
■測定機器
■洗剤 ■ケミカル
■蛍光灯
■季節品-夏
■季節品-冬
■弱電工具
■ホイスト
■環境機器
■掃除機
■ムーブテック
■切削工具
■機械工具■調理厨房機器
■研究室用品
■安全防犯防災品
■エクステリア
■新商品
■在庫処分
調理厨房機器カテゴリー一覧を見る
| フォークリフト車輪洗浄機/品番 M1481P-TIRECLEANER |
【詳細表示】 |
| 商品番号 |
M1481P-TIRECLEANER |
価 格 |
 |
●通過するだけでタイヤの汚れを掻き落とし&吸引、スピード除去。
●食品産業や医薬品・精密機器製造など、クリーン環境が重視される分野でお役にたちます。
※標準仕様は埋込タイプとなります。写真のスロープはオプションです。埋込タイプは下にある参考図をご参考ください。 |
フォークリフト車輪洗浄機
品番 M1481P-TIRECLEANER
|
■特長
●自動でON/OFF、省エネ設計
●フォークリフトを運転して通過するだけ。移動洗浄ブラシの働きで、タイヤに付着している土・粉塵・鉄粉などを掻き落とし、吸引して、瞬時に除去します。(スロープはオプションです。)

●フォークリフト以外の車両もOK

■メカニズム
(1)リフト車輪が乗るとスイッチが入り、集塵機が起動します。
(2)高速移動洗浄ブラシが高速作動し、タイヤ接地面の異物(土・粉塵・鉄粉など)を掻き落とします。
(3)タイヤの移動に合わせて、掻き落とした異物を吸引します。
(4)リフトが反対側のスロープに到達すると集塵機、高速移動洗浄ブラシは停止します。無駄のない省エネクリーナーです。


■使用例
※荷を積んでいない場合ですとスロープ仕様でも良いのですが、荷を積んだままリフトが通過する場合は、埋込にして床面とフラットにする方が良いです。

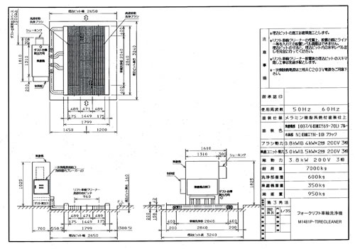
■仕様
| 品番 |
M1481P-TIRECLEANER |
| 洗浄部概算重量 |
600kg |
| 主要部材質 |
SS400 |
| 塗装 |
焼付塗装仕上 |
| 総動力 |
AC200V 3相 3.8kW |
| 耐荷重 |
7000kg |
■参考図(標準仕様)
 |
運賃、および消費税は、記載価格には、含まれていません。
[トップページに戻る]
[注文書]
[見積り依頼] TEL 0729-64-8663 FAX 0729-61-4874
営業時間 AM9:00~PM7:00 営業日 月曜日~金曜日 定休日 土曜日 日曜日 祝日