シロ産業

1976年創業 東大阪市商工会議所会員 2005年度IT百選企業。国公立大学、研究所 自衛隊、警察庁 など主な国公立機関に納入実績多数 医療機器販売業免許取得済み

包装資材 包装機械 物流機器 測定機器 洗剤ケミカル 蛍光灯 季節商品(夏) 季節商品(冬) 弱電工具 ホイスト 環境機器
掃除機 ムーブテック 切削工具 機械工具 調理厨房機器 研究室用品 安全防犯防災用品 エクステリア 新商品情報 在庫処分情報


作業台 - 作業用イス- 台車 - プレス製台車 -鉄板台車 - 手動リフター - コゾウリフター - パレット台車 - マルチキャリー - 平台車
二輪車ガスボンベドラム缶運搬車 - アルミ運搬車油圧ハンドリフター電動テーブルリフトハンドパレット
ホワイトラスティー
- マワール - コンテナボックスパレットパレット - 電動台車 -ベルト荷締機
コンテナ台車 - 台車リフト - タンク - キャスター電動階段運搬車ゴミ箱 -物流機器メインページ

関連商品一覧

中古手動ジブ型リフト/品番 M131V-150-OP
問い合わせ番号 Z-0621-8
【詳細表示】
商品番号 M131V-150-OP 価 格
<特長>
●荷物を吊り上げ、機械に着脱する作業に最適です。
●左右15°ずつ首を振るアームにギャードトロリと吊りフックが付いています。

<仕様>
●先端荷重(kg):150
●全長(mm):1600
●ワイヤー巻取自動ブレーキ付き
中古手動ジブ型リフト
品番 M131V-150-OP

問い合わせ番号 Z-0621-8
限定1台
特価 ¥215,000-





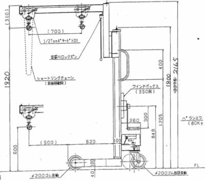
■仕様
品番 均等荷重(kg) 揚程(mm) 全長(mm) 全高(mm) 全幅(mm) 質量(kg)
M131V-150-OP 150 600〜1930 1600 1910 670 約270


■寸法図
 

運賃、および消費税は、記載価格には、含まれていません。

[トップページに戻る][注文書] [見積り依頼] TEL0729-64-8663 FAX 0729-61-4874
営業時間 AM9:00〜PM7:00 営業日 月曜日〜金曜日 定休日 土曜日 日曜日 祝日