シロ産業

作業台台車手動リフター電動リフター油圧ハンドリフターステンレス作業台プレス製台車油圧リフター電動テーブルリフト
作業用イス(オフィスチェア)鉄板台車コゾウリフターハンドパレット台車リフトステンレス台車パレット台車安全用品
電動台車マルチキャリードラム缶運搬車ワゴンパレット平台車二輪車ガスボンベドラム缶運搬車
アルミ運搬車ホワイトラスティーボックスパレットコンテナマワールベルト荷締機高所作業用品
ピッキングカーコンテナ台車タンクキャスター電動階段運搬車ゴミ箱コンベアステンレス機器保管庫作業マット
集塵機傘立てドラムポンプケミカルポンプ農業関連物流機器保冷庫その他の物流機器中古物流機器
物流機器メインページ

関連商品一覧

中古バッテリー式パワーリフター/品番 PLW-D350K
問合せ番号 Z-0642-2

【詳細表示】

商品番号 PLW-D350K 価 格
リフトの上昇スピードを自由にコントロールするソフトアップ機構付です。
昇降レバー操作で上下動はワンタッチです。
作業場所を選ばないバッテリー式です。
強力な足踏みブレーキ装置付です。
バッテリーメーターは3色に色分けした親切設計です。
充電器搭載でいつでも充電OKです。
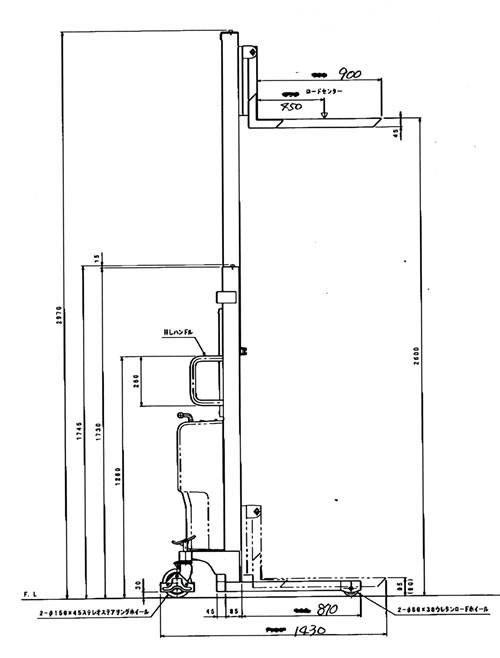
2段マスト型は最高2500mmまで高積み作業が可能です。
発信ボタンを押すだけでスムーズ走行(電動走行タイプ)
強力な足踏みパーキングブレーキ付です。(電動走行タイプ)
中古バッテリー式パワーリフター
品番 PLW-D350K
問合せ番号 Z-0642-2
完売

■仕様

バッテリー式パワーリフター(2段タイプ)

品番

積載荷重
(kg)

揚高
(mm)

上昇タイム
(秒)

全高
(mm)

全幅
(mm)

フォーク長さ
(mm)

重量
(s)

PLW-D350K

200

80〜2500

14〜19

1742

664

900

194







運賃、および消費税は、記載価格には、含まれていません。

[トップページに戻る][注文書] [見積り依頼] TEL0729-64-8663 FAX 0729-61-4874
営業時間 AM9:00〜PM7:00 営業日 月曜日〜金曜日 定休日 土曜日 日曜日 祝日