|
|
│作業台
│台車
│手動リフター
│電動リフター
│油圧ハンドリフター
│ステンレス作業台
│プレス製台車
│油圧リフター
│電動テーブルリフト │
│作業用イス(オフィスチェア)
│鉄板台車
│コゾウリフター
│ハンドパレット
│台車リフト
│ステンレス台車
│パレット台車
│安全用品 │
│電動台車
│マルチキャリー
│ドラム缶運搬車
│ワゴン
│パレット
│平台車
│二輪車
│ガスボンベドラム缶運搬車 │
│アルミ運搬車
│ホワイトラスティー
│棚
│ボックスパレット
│コンテナ
│マワール
│ベルト荷締機
│高所作業用品 │
│ピッキングカー
│コンテナ台車
│タンク
│キャスター
│電動階段運搬車
│ゴミ箱
│コンベア
│ステンレス機器
│保管庫
│作業マット│
│集塵機
│傘立て
│ドラムポンプケミカルポンプ
│農業関連物流機器
│保冷庫
│その他の物流機器
│中古物流機器│
≪物流機器メインページ≫
| 地下埋設雨水タンク(水道水併用型)/品番 M1360C2101HS-1200L | 【詳細表示】 | ||||||||||||||||||||||||||||||||||||||||||||||||||||||
| 商品番号 | M1360C2101HS-1200L | 価 格 | |||||||||||||||||||||||||||||||||||||||||||||||||||||
![]() |
地球の資源を有効活用 水資源を大切にしたいから、雨水や生活排水も有効に使いたい。 雨水・中水活用システムは雨水やお風呂の水をためて散水やトイレに活用するシステムです。 |
地下埋設雨水タンク (水道水併用型) 品番 M1360C2101HS-1200L 価格は下記をご覧下さい |
|||||||||||||||||||||||||||||||||||||||||||||||||||||
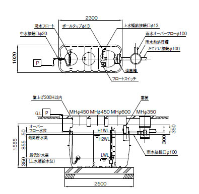
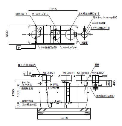
| ■省エネ 雨水を有効活用することで水道施設にかかわるエネルギーを軽減し、二酸化炭素の排出量削減に繋げます。 屋上緑化による断熱効果は住まいの省エネにつながります。 ■節水 最も多くを占めるのがトイレで使用する水です。 これを雨水でまかなうことにより効果的に節水することができます。 ■緑化 環境負荷の少ない緑化ができます。 直物の蒸敵作用は周辺の温度を下げる為、ヒートアイランド対策につながります。 ■水害予防 雨水活用システムが普及すれば、大雨の時にタンクに雨水が貯まり、 排水量を一時的に抑える為、洪水を緩和する働きがあります。 ■防火用水 災害に時に水道水の供給が一時的に止まってもトイレなどの活用や防火用水として使用する事ができます。 ■自治体の助成について 自治体から助成金が出る場合があります。 詳しくは雨水タンクを設置する地域の自治体、または当社までお問い合わせ下さい。 ■雨水・中水活用システム 雨水やお風呂の残り水を塩素消毒し、加圧ポンプを使用してトイレ洗浄水や散水用水として有効活用するシステムです。 水道水との併用式の為、安定した水を加圧ポンプにより供給します。 @降雨 住宅の「たてとい」から雨水を集めます。※中水活用の場合は風呂水も集めます。 A前処理 前処理槽の上層水だけをタンクに送ります。 B雨水タンク(不足分は水道水を補給) 雨が降ると雨水がタンクに貯まります。 塩素消毒器(中水の場合は活性炭を含む)で水質が安定します。 タンクが満水だとそのまま排水されます。 不足分は水道水を補給します。 C加圧 ポンプで加圧して、トイレのタンクなどに加圧送水します。 D雨水を活用 トイレ洗浄や草花の散水などの使用します。 ![]() ■タイプ
■仕様
|
|||||||||||||||||||||||||||||||||||||||||||||||||||||||
■寸法表
|
|||||||||||||||||||||||||||||||||||||||||||||||||||||||
運賃、および消費税は、記載価格には、含まれていません。

[トップページに戻る][注文書] [見積り依頼] TEL0729-64-8663 FAX 0729-61-4874
営業時間 AM9:00〜PM7:00 営業日 月曜日〜金曜日 定休日 土曜日 日曜日 祝日