輸入コンテナ荷出スロープ

その他の物流機器

業務機器&資材 シロ産業 HOME
新製品情報 在庫処分情報 会社概要
見積依頼 ご注文フォーム お問い合わせ
業務用機材商社一筋で、創業41年。東大阪市商工会議所会員、2005年度IT百選企業。
国公立大学、研究所、自衛隊、警察庁 など主な国公立機関に納入実績多数。医療機器販売業免許取得済

包装資材 包装機械 物流機器 測定機器 洗剤 ケミカル 蛍光灯 季節品-夏 季節品-冬 弱電工具 ホイスト 環境機器 掃除機 ムーブテック 切削工具 機械工具調理厨房機器 研究室用品 安全防犯防災品 エクステリア 新商品 在庫処分


カテゴリー第二分類(物流機器)
物流機器カテゴリー一覧を見る
作業台軽量作業台中量作業台重量作業台昇降式作業台ステンレス作業台台車軽量台車樹脂台車レベラー台車ストッパー付台車静音台車折りたたみ台車プレス製台車網カゴ台車長尺台車/長物台車鉄板台車二段台車三段台車一輪車二輪車アルミ製二輪/三輪運搬車ガスボンベ運搬車ドラム缶運搬車ステンレス台車アルミ台車パレット台車コンテナ台車電動台車牽引車平台車アルミ製運搬車エンジンクローラー運搬車マルチキャリー電動階段運搬車リヤカーアルミリヤカーピッキングカー手動リフターエアーリフト電動フォークリフト電動リフター電動テーブルリフト手動テーブルリフト手動油圧リフター油圧リフター油圧ハンドリフターコゾウリフターハンドパレット台車リフトステンレスリフターステンレス台車リフトエアコン室外機リフター集塵機一斗缶ペール缶ドラム缶反転リフトボンベスタンド一斗缶・ペール缶スタンドドラム缶ヒーター一斗缶ペール缶ドラム缶給油コックドラム缶液面計・残量ゲージ攪拌混合機ワゴンステンレスワゴンショッピングカートショッピングバスケットホワイトラスティースリムカートステンレス棚パレットプラスチックパレット再生エコパレット樹脂パレットアルミパレット輸出用パレットネスティングパレットラックボックスパレットパレットカバータンクポリエチレン製タンクステンレスタンク雨水タンクFRPタンク耐熱タンク貯水タンクドラム缶ドラムポンプ/ケミカルポンプコンテナ防水コンテナアルミコンテナ樹脂コンテナ折り畳み式コンテナマワールターンテーブルベルト荷締機高所作業用品脚立・はしご・踏み台安全用品作業用イス(オフィスチェア)クリーンルーム用チェア導電作業椅子・導電チェアライン引きラインテープキャスターゴミ箱分別ゴミ箱ステンレスゴミ箱防犯対策用窓付ゴミ箱傘立てコンベアステンレス機器テント/シート/網/カーテン油圧ジャッキエアー搬送機器保管庫ステンレス保管庫PCB廃棄物保管庫保冷庫/保温庫作業マット/フロアマット農業関連物流機器その他の物流機器中古物流機器

関連商品一覧

輸入コンテナ荷出スロープ/ 品番 MC49VS-1155S 【詳細表示】
商品番号 MC49VS-1155S 価 格
輸入コンテナ荷出スロープ
品番 MC49VS-1155S
価格は下記をご覧ください。
フォークリフト1台でバンニング作業が可能
3分割でき、移動やコンテナとの連結や不用事の収納、運搬等も簡単に行えます。
また、スローブにはサイドガードが付いているため、安全に登り降りができます。



■特長
●可搬性・省スペース
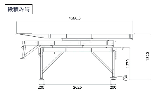
本体は3分割し、3段に積むことが可能。
移動や保管も簡単で、不要時にも場所をとりません。
※段積み時寸法:約2200×4600×H1820mm(SVS-1155のみ)


●設置時には約30~35m必要になります。
※フォークリフトの旋回に必要なスペースも考慮しております。

●省力化
フォークリフトだけでバンニングが可能。
一人で作業ができるので業務コストが大幅にダウン。

●安全性
リブ加工:剛性の優れた溶融亜鉛メッキ鋼板の20mm孔リブ加工は、タイヤのグリップ力を強化しております。(タイヤが摩耗する場合がございます。)


サイドガード:脱着式のサイドガード付きで、安全な昇り降りが可能。


●つなぎ目
可倒式の渡り板になり、架台部とのつなぎ目をなくし一体化できます。


●重量荷重(10.5t)ご希望のお客様にはMC49VS-11105S


■使用上のご注意
※地盤が不安定な場所(アスファルト等)では使用方法に十分ご注意ください。
※急加速・急減速を繰り返すとタイヤの摩耗が早くなります。
※設置の際はご使用リフトの許容荷重をご確認ください。



■仕様
品番 MC49VS-1155S MC49VS-11105S
耐荷重 7500kg 10500kg
全長(mm) 11000mm 11000mm
床高さ(mm) 1200~1350mm 1200~1350mm
幅(mm) 2130mm(2244mm)
接続部(2447mm)
2150mm(2264mm)
接続部(2467mm)
長さ 架台1 3000mm 3000mm
架台2,3 8000mm 8000mm
傾斜角度 9度
自重 架台1 900kg 1050kg
架台2 900kg 1100kg
架台3 1000kg 1250kg
※カウンター式フォークリフト専用となります。
※耐荷重はフォークリフト+積載物の重さです。
※幅( )内はサイドガードを含む長さです。
※この製品は受注生産品です




■寸法図(MC49VS-1155S)


運賃、および消費税は、記載価格には、含まれていません。

[トップページに戻る] [注文書] [見積り依頼] TEL 0729-64-8663 FAX 0729-61-4874

営業時間 AM9:00~PM7:00 営業日 月曜日~金曜日 定休日 土曜日 日曜日 祝日