│作業台
│台車
│手動リフター
│電動リフター
│油圧ハンドリフター
│ステンレス作業台
│プレス製台車
│油圧リフター
│電動テーブルリフト │
│作業用イス(オフィスチェア)
│鉄板台車
│コゾウリフター
│ハンドパレット
│台車リフト
│ステンレス台車
│パレット台車
│安全用品 │
│電動台車
│マルチキャリー
│ドラム缶運搬車
│ワゴン
│パレット
│平台車
│二輪車
│ガスボンベドラム缶運搬車 │
│アルミ運搬車
│ホワイトラスティー
│棚
│ボックスパレット
│コンテナ
│マワール
│ベルト荷締機
│高所作業用品 │
│ピッキングカー
│コンテナ台車
│タンク
│キャスター
│電動階段運搬車
│ゴミ箱
│コンベア
│ステンレス機器
│保管庫
│作業マット│
│集塵機
│傘立て
│ドラムポンプケミカルポンプ
│農業関連物流機器
│保冷庫
│その他の物流機器
│中古物流機器│
≪物流機器メインページ≫
| 手動ジブ型リフトレンタル承ります。 | ||||||||||||||||||||||||||||||||||||||||||||||||||
![]() |
手動ジブ型リフトレンタルできます。 レンタル可能な手動ジブ型リフトの数量にはかぎりがございます。まずメールにてお問い合わせください。 レンタルの開始前に下記金額を先にお振込みいただくこととなります。 予定レンタル料 運賃 保証金20万円(後でご返却いたします) 上記お振込み確認後ご出荷となりますが、出荷までに3日ほどかかります。 手持ちレンタル機械の数量には限りがございますので、必ずレンタルできるとは、限りません。よろしくお願いいたします。 |
|||||||||||||||||||||||||||||||||||||||||||||||||
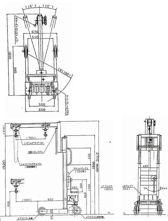
| ■特長 ●荷物を吊り上げ、機械に着脱する作業に最適です。 ●左右15°ずつ首を振るアームにギャードトロリと吊りフックが付いています。 ●ワイヤー巻取自動ブレーキ付き ■仕様
![]() ■価格表
■寸法図 ![]() |
||||||||||||||||||||||||||||||||||||||||||||||||||
運賃、および消費税は、記載価格には、含まれていません。

[トップページに戻る][注文書] [見積り依頼] TEL0729-64-8663 FAX 0729-61-4874
営業時間 AM9:00〜PM7:00 営業日 月曜日〜金曜日 定休日 土曜日 日曜日 祝日