卓上強力材料ミキサー

調理厨房機器

業務機器&資材 シロ産業 HOME
新製品情報 在庫処分情報 会社概要
見積依頼 ご注文フォーム お問い合わせ
業務用機材商社一筋で、創業41年。東大阪市商工会議所会員、2005年度IT百選企業。
国公立大学、研究所、自衛隊、警察庁 など主な国公立機関に納入実績多数。医療機器販売業免許取得済

包装資材 包装機械 物流機器 測定機器 洗剤 ケミカル 蛍光灯 季節品-夏 季節品-冬 弱電工具 ホイスト 環境機器 掃除機 ムーブテック 切削工具 機械工具調理厨房機器 研究室用品 安全防犯防災品 エクステリア 新商品 在庫処分


カテゴリー第二分類(調理厨房機器)
調理厨房機器カテゴリー一覧を見る

関連商品一覧

卓上強力材料ミキサー/ 品番 M2774N-10K 【詳細表示】
商品番号 M2774N-10K 価 格
卓上強力材料ミキサーM2774N-10K 自動ミキシングのプログラム機能

ワンタッチで工程を再現するプログラムを4パターン登録することができます。

単相200V 50/60Hz 0.7kW 4A
卓上強力材料ミキサー
品番 M2774N-10K
■特長
●衛生来てなステンレススチールボディ
●スクレーパーによる自動掻き落とし
●直観操作が可能な操作パネル
●見やすいデジタル表示
●インバーター15段階変速 (110~420RPM)


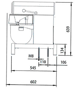
■寸法図



■仕様
品番 M2774N-10K
電気仕様 単相200V
消費電力 0.7kW
プログラミング 4
防水 IP32
卵白 1L
ホイップクリーム 2.5L
パン生地(60%AR) 6kg
マフィン 6.5kg
アイシング 5.8kg
ドーナツ 6kg

運賃、および消費税は、記載価格には、含まれていません。

[トップページに戻る] [注文書] [見積り依頼] TEL 0729-64-8663 FAX 0729-61-4874

営業時間 AM9:00~PM7:00 営業日 月曜日~金曜日 定休日 土曜日 日曜日 祝日