冷凍庫 大型チェスト型冷凍ストッカー

冷蔵庫・冷凍庫

業務機器&資材 シロ産業 HOME
新製品情報 在庫処分情報 会社概要
見積依頼 ご注文フォーム お問い合わせ
業務用機材商社一筋で、創業41年。東大阪市商工会議所会員、2005年度IT百選企業。
国公立大学、研究所、自衛隊、警察庁 など主な国公立機関に納入実績多数。医療機器販売業免許取得済

包装資材 包装機械 物流機器 測定機器 洗剤 ケミカル 蛍光灯 季節品-夏 季節品-冬 弱電工具 ホイスト 環境機器 掃除機 ムーブテック 切削工具 機械工具調理厨房機器 研究室用品 安全防犯防災品 エクステリア 新商品 在庫処分


カテゴリー第二分類(調理厨房機器)
調理厨房機器カテゴリー一覧を見る

関連商品一覧

冷凍庫 大型チェスト型冷凍ストッカー 品番 M1059V-6282 【詳細表示】
商品番号 M1059V-6282 価 格
冷凍庫 大型チェスト型冷凍ストッカー/M1059V-6282 大きな食材もまるごと&箱ごとでも保存可能!
大容量の冷凍ストッカー

大型チェスト型 上開きタイプ
冷凍庫 大型チェスト型冷凍ストッカー
品番 M1059V-6282
廃番
■共通特長
●通電ランプ
●温度調整ダイヤル
●急速冷凍機能
●温度上昇警告ランプ
●金属製ヒンジ採用
●カゴ式バスケット付
●排水ドレイン付
●庫内鋼板製
●カギ付

■タイプ
M1059V-6282 M1059V-6362
M1059V-6464

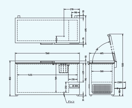
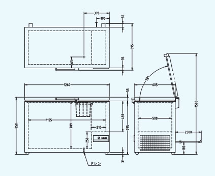
■寸法図
M1059V-6282
M1059V-6362
M1059V-6464

■仕様
品番 M1059V-6282 M1059V-6362 M1059V-6464
外形寸法 (mm)
幅×奥行×高さ
1020×695×850 1260×695×850 1560×695×850
庫内寸法 (mm)
幅×奥行×高さ
915×500×709mm 1155×500×709mm 1455×500×709mm
有効内容量
(リットル)※3
282(282) 362(362) 464(464)
重量(kg) 50 65 78
電動機定格
消費電力 (W)
110 130 130
年間消費電力
(Kwh/年)
481 523 680
冷却方式 直冷式 直冷式 直冷式
生産国 デンマーク デンマーク デンマーク
本体色 ホワイト ホワイト ホワイト
庫内温度 -18℃以下 -18℃以下 -18℃以下
製品保証期間 本体:1年間
コンプレッサー:3年間
※1:冷凍有効内容積100リットルあたり3.5kg以上の食品を24時間以内に-18℃以下に冷凍する能力。
※2:JIS9801-2015年
※3:( リットル)は食品収納スペースの目安です。
※厨房設計時に便利なCADデータあります。(一部ない機種もございます)

運賃、および消費税は、記載価格には、含まれていません。

[トップページに戻る] [注文書] [見積り依頼] TEL 0729-64-8663 FAX 0729-61-4874

営業時間 AM9:00~PM7:00 営業日 月曜日~金曜日 定休日 土曜日 日曜日 祝日