超薄型可搬式小型トラックスケール 検定無(2t)

トラックスケール

業務機器&資材 シロ産業 HOME
新製品情報 在庫処分情報 会社概要
見積依頼 ご注文フォーム お問い合わせ
業務用機材商社一筋で、創業41年。東大阪市商工会議所会員、2005年度IT百選企業。
国公立大学、研究所、自衛隊、警察庁 など主な国公立機関に納入実績多数。医療機器販売業免許取得済

包装資材 包装機械 物流機器 測定機器 洗剤 ケミカル 蛍光灯 季節品-夏 季節品-冬 弱電工具 ホイスト 環境機器 掃除機 ムーブテック 切削工具 機械工具調理厨房機器 研究室用品 安全防犯防災品 エクステリア 新商品 在庫処分


カテゴリー第二分類(測定機器)
測定機器カテゴリー一覧を見る
温度計温湿度計湿度トランスミッター無線温度計無線温湿度計記録温湿度計紙記録温湿度計放射温度計放射温度センサー温湿度監視計器おんどとりデーターロガー防水・防滴温度データロガー耐熱データロガー低温用データロガー超低温用データロガー無線温湿度ロガー圧力データロガーガス濃度データロガー気象計器風速計ハンディ風速計設置型/据置型風速計露点計雨量計気圧計気流可視化装置重量秤防水秤台秤吊秤トラックスケール台車秤ハンドパレットスケール電子天秤検定付重量秤防爆重量秤個数秤農産物選別秤比重計厚さ計膜厚計デジタル距離計レーザーマーカー墨出機トルクゲージノギスマイクロメータシックネスゲージ騒音計照度計色計 光沢計/輝度計 色差計/色彩色差計白色度計紫外線測定器PH水質計水分計濁度計電気伝導率計/導電率計/EC計溶存酸素計(DO計)振動計衝撃計ガス測定器酸素濃度計二酸化炭素濃度計ホルムアルデヒド測定器オゾンガス濃度計ガス漏れ検知器環境測定器ニオイ臭気測定器金属探知器金属検出機食品用金属探知器検針機電気測定器電磁力計ガウスメーター/テスラメーター電磁波 電位計静電気測定器角度計水準器回転計スコヤ圧力計流量計プッシュプルゲージロードセルテンションメーター光学機器拡大鏡顕微鏡ファイバースコープカウンター表示器表示板/表示モニター/表示パネル糖度計屈折計濃度計塩分計酸度計アルコール濃度計健康管理熱中症計枚数計数機器粘度計粉塵計硬度計粗さ計液面計・水面計その他計測器中古測定機器

関連商品一覧

超薄型可搬式小型トラックスケール 検定無(2t)/ 品番 M1397LTP-PK2N-2T 【詳細表示】
商品番号 M1397LTP-PK2N-2T 価 格
超薄型可搬式小型トラックスケール 検定無(2t)/M1397LTP-PK2N-2T 超薄型可搬式小型トラックスケール 検定無(2t)
品番 M1397LTP-PK2N-2T
価格は下記をご覧ください
超薄型小ひょう量タイプの簡易設置・可搬型のトラックスケールです。
組み立てが不要なロードセル一体型なのでフォークリフトなどで簡単に移動できます。




小型トラックで運搬が可能で、設置も簡単に行えます。
しかも、平らな地上にそのまま設置が可能なため、基礎工事が不要です。
接続も容易で、価格、時間ともに抑えられ、非常にコストパフォーマンスに優れています。
 
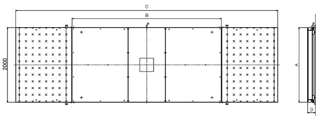
■寸法図

品番 検定 ひょう量 目量 積載面寸法 C D
(t) (kg) A B
M1397LTP-PK2N-2T 検定無 2 1 2000 4000 7020 208~215 ※1
M1397LTP-PK2N-3T 3 1
M1397LTP-PK2N-4T 4 2
M1397LTP-PK2N-5T 5 2
M1397LTP-PK2N-K2T 検定付 2 1 2000 4000 7020 208~215 ※1
M1397LTP-PK2N-K3T 3 1
M1397LTP-PK2N-K4T 4 2
M1397LTP-PK2N-K5T 5 2
C=スロープ部分を含んだ最短長です
※1 高さはアジャスターで任意に変更できます。


■指示計
12.1インチタッチパネル+音声ナビ搭載
次世代ハイスペックトラックスケール用指示計。


■大型タッチパネル&音声ナビで簡単操作
車番入力から伝票発行まで、画面にふれるだけで計量業務が行えますので、どなたでも簡単に操作できます。

車番や項目の入力は、コードナンバー入力の他に、登録一覧からの選択入力も可能です。

またトラック乗車時や計量終了時などに音声で次の操作の案内をします。
音声は男性・女性を選択可能です。


■豊富な拡張インターフェイス
RS-232C、USB、Ethernet、SDカードスロットなど豊富なインターフェイスを搭載。

従来型のドットプリンタはもちろん、レーザープリンタなど豊富な外部オプションに対応します。

また、SDカードへのバックアップに対応し、万一本体が故障してもバックアップから計量データの復元が可能になりました。


■豊富な機能で作業効率がアップ
補正機能、データ修正、追加機能、RS-232C通信機能など豊富な機能と使いやすい操作性で能率よく計量処理が可能です。

(一部オプション)また制御ユニットとプリンタを別体とすることでメンテナンス性を高めています。


■基本性能
車両情報登録 4,000台
滞留車情報 500台
電圧電源 AC100V±10% 50/60Hz
仕様温度範囲 0℃~40℃
外部寸法(本体のみ) 324(W)×105(D)×262(H)mm
重量(本体のみ) 4.3kg(スタンド含む)
マスタ登録 4,000件×4項目
補正登録数 1,000件×3項目
日計元帳件数 10,000件(集計データ等)
消費電力 約30W
使用湿度範囲 相対湿度 85%以下

運賃、および消費税は、記載価格には、含まれていません。

[トップページに戻る] [注文書] [見積り依頼] TEL 0729-64-8663 FAX 0729-61-4874

営業時間 AM9:00~PM7:00 営業日 月曜日~金曜日 定休日 土曜日 日曜日 祝日